Favorito y comentario
Pis a La Nova Esquerra de l´Eixample Barcelona
Característiques principals
- 103 m2
- 3 hab.
- 2 banys
- 5.320 €/m2
Informació detallada
TOTALMENTE EXTERIOR – MUY LUMINOSO – 4º REAL – 3 HABITACIONES – 2 BAÑOS – REFORMADO – FINCA CON ASCENSOR Y CONSERJE – UBICACIÓN CÉNTRICA – AIRE ACONDICIONADO – COCINA EQUIPADA
OnePro presenta esta fantástica vivienda situada en la emblemática calle Calàbria, en pleno corazón del Eixample, una zona con gran vida de barrio, perfectamente comunicada y rodeada de todos los servicios. La propiedad se encuentra en una cuarta planta real de una finca clásica del año 1950 que dispone de ascensor y servicio de conserjería, lo que aporta comodidad y seguridad al día a día.
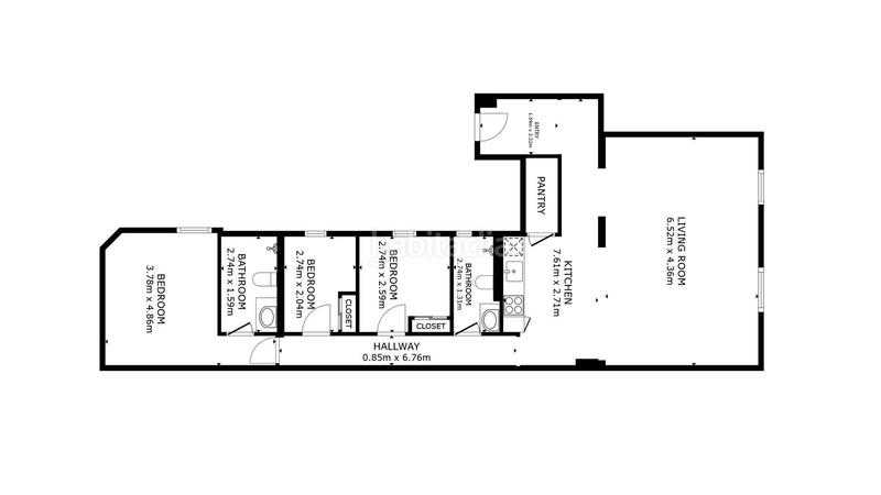
El inmueble, completamente reformado con materiales de calidad, cuenta con una superficie de 88 metros cuadrados útiles y 103 construidos. Dispone de una distribución muy funcional, con tres habitaciones —una doble en suite y dos individuales—, dos baños completos (uno de ellos integrado en la habitación principal), una cocina totalmente equipada y un salón comedor amplio y muy luminoso con vistas a calle.
Gracias a su orientación y a que es totalmente exterior, la vivienda goza de luz natural durante todo el día. El estado del piso es impecable: suelos de parquet, armarios empotrados, carpintería de aluminio, aire acondicionado y calefacción. Se entrega con el certificado energético aportado. El IBI anual es de 830 € y los gastos de comunidad ascienden a 106 € mensuales.
Una oportunidad única para vivir en una zona céntrica y consolidada de Barcelona, con todas las comodidades de una vivienda moderna.
Si desea agendar visita o recibir más información, no dude en contactarnos.
última modificació
Distribució
- 3 habitacions
- Superfície 103 m2
- 2 banys
Característiques generals
- Aire Acondicionat
- Any construcció 1950
Equipament comunitari
- Ascensor
Galeria
Ubicació
La Nova Esquerra de l´Eixample Carrer Carrer de Calàbria
