Comentari guardat!
Només ho veuràs tú
Comment saved!
Afegeix la teva valoració i/o un comentari per aquest anunci. Només el veuràs tu
Oportunitat 315.000 € Avisa´m si baixa
ha baixat 10.000 €

Pis amb calefacció a La Verneda - La Pau Barcelona

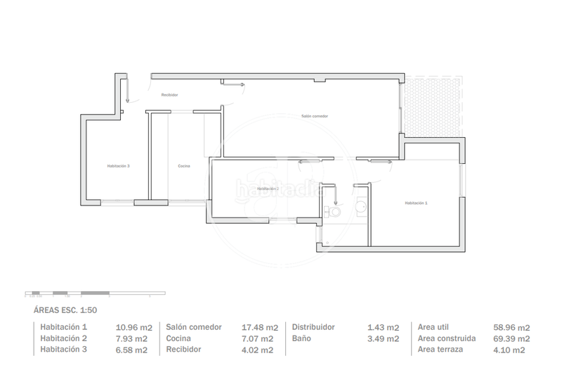
  • 74 m2
  • 3 hab.
  • 1 bany
  • 4.257 €/m2

Piso en venta en Rambla Prim

PISO A REFORMAR CON MUCHAS POSIBILIDADES EN SANT MARTI DE PROVENÇALS

¡Gran oportunidad para reformar a tu gusto! Vivienda de 76 m² construidos con una distribución muy práctica y amplias opciones de redistribución gracias a su construcción por pilares.

Dispone de 3 habitaciones (1 doble exterior y 2 individuales de buen tamaño), cocina independiente con ventana a patio interior ideal para tender la ropa, y un balcón de 4 m², actualmente cerrado, con posibilidad de abrirlo nuevamente para disfrutar del aire libre.

El piso cuenta con agua caliente y cocina de gas, caldera en buen estado, y calefacción radiante en el techo. Carpintería exterior de aluminio. No dispone de aire acondicionado.

Ubicado en un 7º real con ascensor, en finca bien conservada y con fachada posterior rehabilitada recientemente. Además, los vecinos disfrutan de una zona comunitaria privada, y existe la opción de alquilar una plaza de parking en la misma finca con acceso directo al edificio.

Situado en el barrio de Sant Martí de Provençals, junto a la parada de metro Besòs (L4) y con todo tipo de servicios, comercios y zonas verdes en los alrededores.

Ideal para quienes buscan personalizar su hogar en una zona tranquila, bien comunicada y con todos los servicios.
Ref. VB2511022

última modificació

Distribució

  • 3 habitacions
  • Superfície 74 m2
  • 1 bany

Característiques generals

  • Calefacció
  • Sense plaça aparcament
  • Sense aire acondicionat
  • Any construcció 1975
  • Certificat energètic :
    Consumo:
    E
    146 kW h m2 / año
    Emisiones:
    E
    30 kg CO2 m2 / año

Equipament comunitari

  • Ascensor
Anunci: 4737003826555

Ubicació

La Verneda - La Pau Rambla de Prim

Navega pel mapa fent clic a sobre
315.000 € Preu de l´anunci
5.659 €/m2€/m2 distrito
4.257 €/m2€/m2 de l´anunci
25% més econòmic que la mitja*
Veure evolució €/m2 a Barcelona (Sant Martí)
T´avisem quan tinguem un anunci com aquest? Crea la teva alerta i nosaltres t´avisarem per correu electrònic quan hi hagin nous anuncis o siguin modificats
 

Contactar APROPERTIES REAL ESTATE BARCELONA

Referència de l´anunci habitaclia/VB2511022:

Veuràs el telèfon després d´enviar el contacte a l´anunciant perquè et pugui atendre.
Veuràs el telèfon després de contactar
Enviant…