Favorito y comentario
Pis a Les Torres Rubí
Característiques principals
- 78 m2
- 3 hab.
- 1 bany
- 1.690 €/m2
Informació detallada
Solvia Inmobiliaria Piso Rubí
Oportunidad sólo para inversores. El activo se encuentra ocupado. Debido al estado ocupacional del activo, no se pueden realizar visitas al mismo.
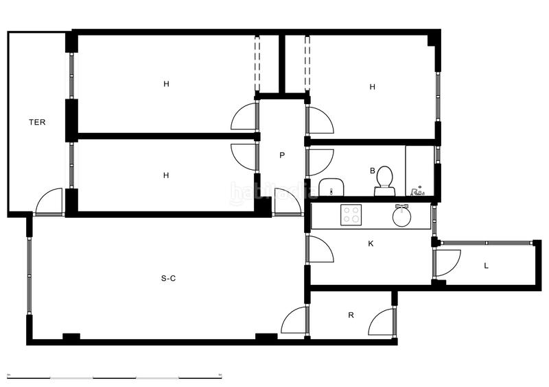
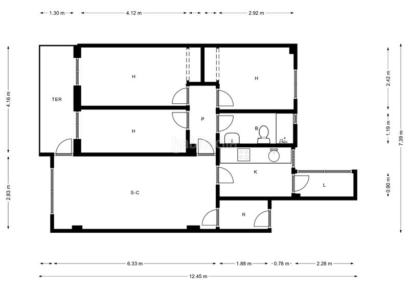
Piso de tres dormitorios y un baño en venta. Se encuentra en la planta quinta de un edificio residencial de diez plantas sobre rasante. Con ascensor. Situado en el municipio de Rubí. La vivienda se distribuye en tres dormitorios, amplio salón-comedor, cocina independiente, un cuarto de baño, lavadero y terraza. La superficie construida de la vivienda es de 78 m² y 67,96 m² útiles aproximadamente. Cuenta con cocina semi-equipada con muebles altos y bajos, vitrocerámica, campana extractora y horno. En su entorno existen viviendas plurifamiliares de similares características. La zona cuenta con todo tipo de servicios básicos, tales como, sanitarios, educativos, restaurantes, supermercados, comercios, amplias zonas verdes, etc. Además el municipio dispone de todo tipo de transporte público y de buenas conexiones con todo tipo de carreteras, nacional, comarcal, local, autovías y autopista.
Con nuestros servicios podrá encontrar la vivienda que necesita. Empiece ahora mismo pidiendo más información. Un responsable cercano a usted le atenderá personalmente. - El inmueble se transmite arrendado a tercero y con un posible derecho de éste a la adquisición preferente del mismo. El Inmueble se transmitirá: (i) como cuerpo cierto y a tanto alzado (ii) como un todo, inseparable (iii) en el estado registral y catastral en el que se encuentre (iv) en el estado físico, calidades, jurídico, urbanístico, administrativo, de licencias, de protección, de conservación y limpieza en el que se encuentre (v) al corriente de gastos e impuestos que por Ley corresponda al Vendedor.
El Adquirente asumirá (i) la situación física y estado de conservación (ii) la situación urbanística (iii) las discrepancias entre la realidad física y la realidad registral y catastral o en la cabida del Inmueble (iv) la adecuación registral y catastral del Inmueble.
La Propiedad no responderá de/l (i) la solvencia del arrendatario ni de las condiciones del contrato de arrendamiento, (ii) estado de conservación (iii) los vicios vistos y aparentes (iv) la regularización registral o catastral (v) las discrepancias de cabida, que pudieran existir (vi) la responsabilidad en la obtención de la cedula de habitabilidad del Inmueble, salvo que en la Comunidad Autónoma donde se ubique el Inmueble sea obligatoria su entrega y (vii) cualesquiera costes, gastos, honorarios, aranceles o tributos que se deriven de lo anterior.
Si a fecha de venta, la Propiedad hubiese demandado judicialmente al arrendatario, podría el adquirente subrogarse en dicha demanda, no pudiendo reclamar importe alguno a la Propiedad como consecuencia de ello, salvo por los honorarios de abogados y procuradores que hasta la fecha de la transmisión se hubiesen devengado que, en cualquier caso, serán por cuenta de éste.
El estado de ocupación y/o los impedimentos para que el inmueble pueda ser visitado libremente por los técnicos impedirían: i) su tasación oficial conforme exige la Orden ECO/de 27 de marzo, por lo que el inmueble, mientras perdure la situación ocupacional, no podría ser hipotecado. En consecuencia, no podría constituirse financiación hipotecaria sobre este tipo de fincas, cuya adquisición requerirá el otorgamiento de otro tipo de garantías en caso de solicitarse financiación y ii) la obtención por parte de la propiedad del certificado de eficiencia energética.
En el caso de que a la Propiedad no le consten depositadas las fianzas o garantías que se constituyeron en el contrato de arrendamiento por no haber sido el arrendador inicial del contrato, el adquirente exonerara a la Propiedad de la entrega de dichas fianzas y/o garantías.
El precio de venta de este Inmueble se ha determinado en base a las anteriores circunstancias, que han supuesto un menor valor del mismo, y que deberán ser expresamente aceptadas por el adquirente en la formalización de la transmisión del Inmueble. Se recomienda que el comprador obtenga asesoramiento profesional y legal antes de adoptar la decisión de compra.
última modificació
Distribució
- 3 habitacions
- Superfície 78 m2
- 1 bany
Característiques generals
Equipament comunitari
- Ascensor
- Equipamiento deportivo
Galeria
Ubicació
Les Torres C/ Nova
