Comentari guardat!
Només ho veuràs tú
Comment saved!
Afegeix la teva valoració i/o un comentari per aquest anunci. Només el veuràs tu
4.900.000 € Avisa´m si baixa

Pis amb calefacció a Ríos Rosas-Nuevos Ministerios Madrid

  • 581 m2
  • 5 hab.
  • 4 banys
  • 8.434 €/m2

Piso exterior en venta a reformar y segregable en Chamberí, Madrid

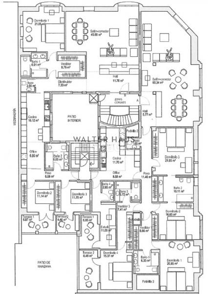
Walter Haus presenta un amplio piso a reformar y segregable de 590 m² situado en una única planta. Ubicado en una emblemática finca clásica en esquina en el prestigioso distrito de Chamberí, este inmueble, actualmente destinado a oficina, ofrece la posibilidad de ser reformado y segregado en dos viviendas independientes, ya que cuenta con autorización de la comunidad. La finca dispone de servicio de portería, montacargas, trastero y entrada de servicio independiente, garantizando comodidad y exclusividad.

Aunque las imágenes muestran una oficina, la propiedad tiene un uso exclusivamente residencial. Destaca por sus techos altos que potencian la sensación de amplitud y luminosidad en cada estancia. Su distribución permite una reforma flexible, ya que las bajantes están estratégicamente ubicadas a lo largo del inmueble, optimizando las posibilidades de diseño. Además, cuenta con cuatro accesos independientes, dos principales y dos de servicio, lo que añade funcionalidad y privacidad. Su orientación hacia un edificio protegido de baja altura permite que la luz natural fluya en todos los espacios.

Ubicado en una de las zonas más codiciadas de Madrid, el piso se encuentra a pocos pasos del Paseo de la Castellana. El barrio en el que está ubicado destaca por su arquitectura clásica, calles arboladas y una variada oferta de comercios, restaurantes y servicios. Alberga lugares emblemáticos, además de contar con excelentes conexiones de transporte. Es una opción muy atractiva tanto para familias como para profesionales.

Este inmueble es una excelente oportunidad para quienes buscan una vivienda de gran tamaño con posibilidades de personalización o una inversión segura en una de las mejores zonas de Madrid. Para más información o concertar una visita, contacta con Walter Haus.

Walter Haus Real Estate es un grupo inmobiliario con sede en las principales capitales de España, en las principales ubicaciones de Madrid, Barcelona y Costa Brava.
Contamos con una experiencia de más de 20 años, con un dinámico equipo de profesionales con experiencia en el asesoramiento personal en constante formación y con una especialización muy concreta en cada zona de actuación lo que nos permite encontrar soluciones a las necesidades de cada cliente.

última modificació

Distribució

  • 5 habitacions
  • Superfície 581 m2
  • 4 banys
  • Cuina Tipus Office: No
  • Traster

Característiques generals

  • Calefacció
  • Sense plaça aparcament
  • Aire Acondicionat
  • Certificat energètic :
    Consumo:
    E
    1 kW h m2 / año
    Emisiones:
    E
    1 kg CO2 m2 / año

Equipament comunitari

  • Ascensor
Anunci: 39921000000541

Ubicació

Ríos Rosas-Nuevos Ministerios

Navega pel mapa fent clic a sobre
4.900.000 € Preu de l´anunci
9.419 €/m2€/m2 distrito
8.434 €/m2€/m2 de l´anunci
10% més econòmic que la mitja*
Quant t´agradaria pagar?
Veure evolució €/m2 a Madrid (Chamberí)
T´avisem quan tinguem un anunci com aquest? Crea la teva alerta i nosaltres t´avisarem per correu electrònic quan hi hagin nous anuncis o siguin modificats
 

Contactar WALTER HAUS MADRID

Referència de l´anunci habitaclia/M20767V:

Veuràs el telèfon després d´enviar el contacte a l´anunciant perquè et pugui atendre.
Veuràs el telèfon després de contactar
Enviant…