Comentari guardat!
Només ho veuràs tú
Comment saved!
Afegeix la teva valoració i/o un comentari per aquest anunci. Només el veuràs tu
5.400.000 € Avisa´m si baixa

Pis amb calefacció aparcament a Ríos Rosas-Nuevos Ministerios Madrid

  • 596 m2
  • 6 hab.
  • 5 banys
  • 9.060 €/m2

Piso reformado en venta, con plaza de garaje en Chamberí, Madrid

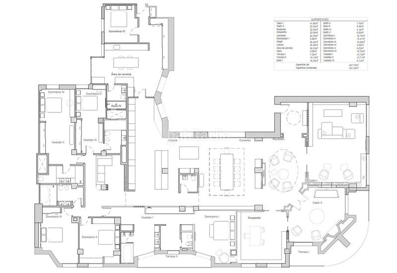
Ubicada en una de las zonas más solicitadas de Madrid, esta residencia señorial de 596 m² construidos ofrece una experiencia de vida excepcional. Situada en una cuarta planta esquinera, su orientación garantiza una luminosidad inigualable en cada rincón, acentuada por sus amplios ventanales y la generosa altura de sus techos. La finca, cuidada al detalle, cuenta con portero, entrada de servicio independiente y montacargas, proporcionando un entorno seguro y de gran comodidad para sus residentes.

El interior de esta vivienda está pensado para el confort y el lujo sutil. Un elegante y espacioso recibidor abre paso a un luminoso salón y a un refinado comedor, ambos ideales para encuentros sociales. La cocina, con un diseño vanguardista y equipada con los más altos estándares, combina a la perfección la estética con la funcionalidad diaria. La distribución de la propiedad ha sido planificada meticulosamente, separando las zonas de día, de noche y de servicio para ofrecer máxima privacidad y un estilo de vida más organizado.

La zona privada se compone de seis espaciosos dormitorios, incluyendo una suite principal que brinda un oasis de tranquilidad. Además, dispone de cinco baños completos y un aseo de cortesía para mayor conveniencia. Para aquellos que valoran el trabajo desde casa, un despacho independiente proporciona el ambiente ideal. Los acabados de alta calidad son una constante en toda la propiedad, con suelos de parquet de Tarimas del Mundo, porcelánicos de diseño y sanitarios de primera, que reflejan una reforma integral de estilo contemporáneo.

Esta propiedad representa una oportunidad única para vivir en el prestigioso barrio de Chamberí, uno de los más cotizados de la capital. Además de todas las comodidades de la vivienda, se incluyen una amplia plaza de garaje y dos trasteros, lo que añade un valor considerable en esta ubicación céntrica. Con una entrega prevista para noviembre, esta residencia promete ser la elección perfecta para quienes buscan un estilo de vida superior en Madrid. En Walter Haus, estamos a su disposición para ayudarle a dar el siguiente paso.

Walter Haus Real Estate es un grupo inmobiliario con sede en las principales capitales de España, en las principales ubicaciones de Madrid, Barcelona y Costa Brava.
Contamos con una experiencia de más de 20 años, con un dinámico equipo de profesionales con experiencia en el asesoramiento personal en constante formación y con una especialización muy concreta en cada zona de actuación lo que nos permite encontrar soluciones a las necesidades de cada cliente.

última modificació

Distribució

  • 6 habitacions
  • Superfície 596 m2
  • 5 banys
  • Cuina Tipus Office: No
  • Traster

Característiques generals

  • Calefacció
  • Plaça aparcament
  • Aire Acondicionat
  • Any construcció 1958
  • Certificat energètic :
    Consumo:
    E
    168 kW h m2 / año
    Emisiones:
    E
    35 kg CO2 m2 / año

Equipament comunitari

  • Ascensor
Anunci: 39921000000702

Ubicació

Ríos Rosas-Nuevos Ministerios Calle de José Abascal

Navega pel mapa fent clic a sobre
5.400.000 € Preu de l´anunci
9.419 €/m2€/m2 distrito
9.060 €/m2€/m2 de l´anunci
4% més econòmic que la mitja*
Quant t´agradaria pagar?
Veure evolució €/m2 a Madrid (Chamberí)
T´avisem quan tinguem un anunci com aquest? Crea la teva alerta i nosaltres t´avisarem per correu electrònic quan hi hagin nous anuncis o siguin modificats
 

Contactar WALTER HAUS MADRID

Referència de l´anunci habitaclia/M20855V:

Veuràs el telèfon després d´enviar el contacte a l´anunciant perquè et pugui atendre.
Veuràs el telèfon després de contactar
Enviant…