Comentari guardat!
Només ho veuràs tú
Comment saved!
Afegeix la teva valoració i/o un comentari per aquest anunci. Només el veuràs tu
1.250.000 € Avisa´m si baixa

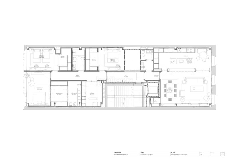
Pis 253m2 a rúa colón 22 a Centro - Areal Vigo

  • des de 253 m2
  • 3 hab.
  • 3 banys
  • 4.941 €/m2
COLON 22
Pertany a la promoció

COLON 22

Esta promoción tiene 4 tipos de habitatges Veure promoció

"PROMOCIÓN EXCLUSIVA EN EL DISTRITO CENTRO
6 Viviendas de Alto Standing en un Edificio Emblemático de Estilo Neoclásico
En el corazón histórico y vibrante de Vigo, en una de sus calles más representativas, se alza un edificio singular de arquitectura neoclásica proyectado por Jenaro de la Fuente en 1912 y que ha sido testigo del paso del tiempo y la evolución de la ciudad. Hoy, este inmueble, cuidadosamente rehabilitado, se transforma para ofrecer una promoción irrepetible de tan solo 6 viviendas de alto standing, concebidas para quienes buscan lo extraordinario.
Esta promoción parte de un concepto claro: respetar la esencia arquitectónica original del edificio, valorando su identidad y carácter, y dotarlo a la vez de las más altas prestaciones del siglo XXI. El resultado es una fusión perfecta entre clasicismo y vanguardia, donde cada detalle ha sido proyectado para ofrecer una experiencia de vida única, elegante y sofisticada.
Las viviendas, todas diferentes y cuidadosamente diseñadas, destacan por sus techos altos, espacios generosos, y una cuidada distribución que privilegia la luz natural, la funcionalidad y el confort. El respeto por la arquitectura tradicional se traduce en elementos restaurados como molduras, balcones de hierro forjado o grandes ventanales, que conviven con materiales y tecnologías de última generación."

última modificació

Distribució

  • 3 habitacions
  • Superfície 253 m2
  • 3 banys
  • Cuina Tipus Office

Característiques generals

  • Calefacció
  • Sense plaça aparcament
  • Sense aire acondicionat
  • Planta número 2
  • Certificat energètic :
    Consumo:
    G
    999 kW h m2 / año
    Emisiones:
    G
    999 kg CO2 m2 / año

Equipament comunitari

  • Ascensor
Anunci: 34046000000386

Ubicació

Centro - Areal Rúa Colón 22

Navega pel mapa fent clic a sobre
1.250.000 € Preu de l´anunci
2.933 €/m2€/m2 distrito
4.941 €/m2€/m2 de l´anunci
Veure evolució €/m2 a Vigo (Centro Urbano)
T´avisem quan tinguem un anunci com aquest? Crea la teva alerta i nosaltres t´avisarem per correu electrònic quan hi hagin nous anuncis o siguin modificats
 

Pertany a la promoció COLON 22

Vigo - Rúa Colón, 22
Promoción COLON 22 Vigo - Rúa Colón, 22 des de 975.000 € Veure promoció
Altres tipus d´habitatge d´aquesta promoció

Contactar Faramon Real Estate

Referència de l´anunci habitaclia/2º:

Veuràs el telèfon després d´enviar el contacte a l´anunciant perquè et pugui atendre.
Veuràs el telèfon després de contactar
Enviant…