Favorito y comentario
Pis 107m2 a ingeniero alejandro mendizabal kalea 11 a Salburua - Arantzabela Vitoria - Gasteiz
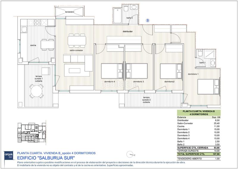
Característiques principals
- des de 107 m2
- 4 hab.
- 2 banys
- 3.832 €/m2

Edificio Salburua Sur
Esta promoción tiene 3 tipos de habitatges Veure promocióInformació detallada
Situado en c/ Ingeniero Alejandro Mendizabal -Nueva edificación, en una zona completamente consolidada con todos los servicios
La características principales del Edificio Salburua Sur, son sus grandes terrazas de 15 a 20 m² orientadas a Sur, Este y Oeste, así como las grandes terrazas solárium de más de 70 m² en áticos.
Trasteros de 12 m2 en planta baja y plazas de garaje dobles.
Una de las ventajas del Edificio es la cercanía a colegios nuevos de Salburua, ya sea el colegio Errekabarri Salburua o el nuevo colegio de educación secundaria, a escasos 200m.
Asimismo está ubicado muy cerca de todos los servicios: Centro Cívico, Centro de Salud, la zona comercial de Bulevar de Salburua y el Centro Comercial con múltiples supermercados.
Con la parada de tranvía junto al Centro Cívico, el edificio queda bien conectado con el Centro, ya sea con transporte público o caminando.
última modificació
Distribució
- 4 habitacions
- Superfície 107 m2
- Terrassa 14 m2
- 2 banys
- Cuina Tipus Office: No
- Traster
Característiques generals
- Sense plaça aparcament
- Sense aire acondicionat
- Planta número 4
Galeria
Ubicació
Salburua - Arantzabela Ingeniero Alejandro Mendizabal Kalea 11

Dades comparatives
Pertany a la promoció Edificio Salburua Sur

- Piso
- 91 m2
- 3 hab
- 355.000 €
- Veure anunci
- Piso
- 107 m2
- 4 hab
- 400.000 €
- Veure anunci