Comentari guardat!
Només ho veuràs tú
Comment saved!
Afegeix la teva valoració i/o un comentari per aquest anunci. Només el veuràs tu

Planta baixa a Puerto Deportivo Fuengirola

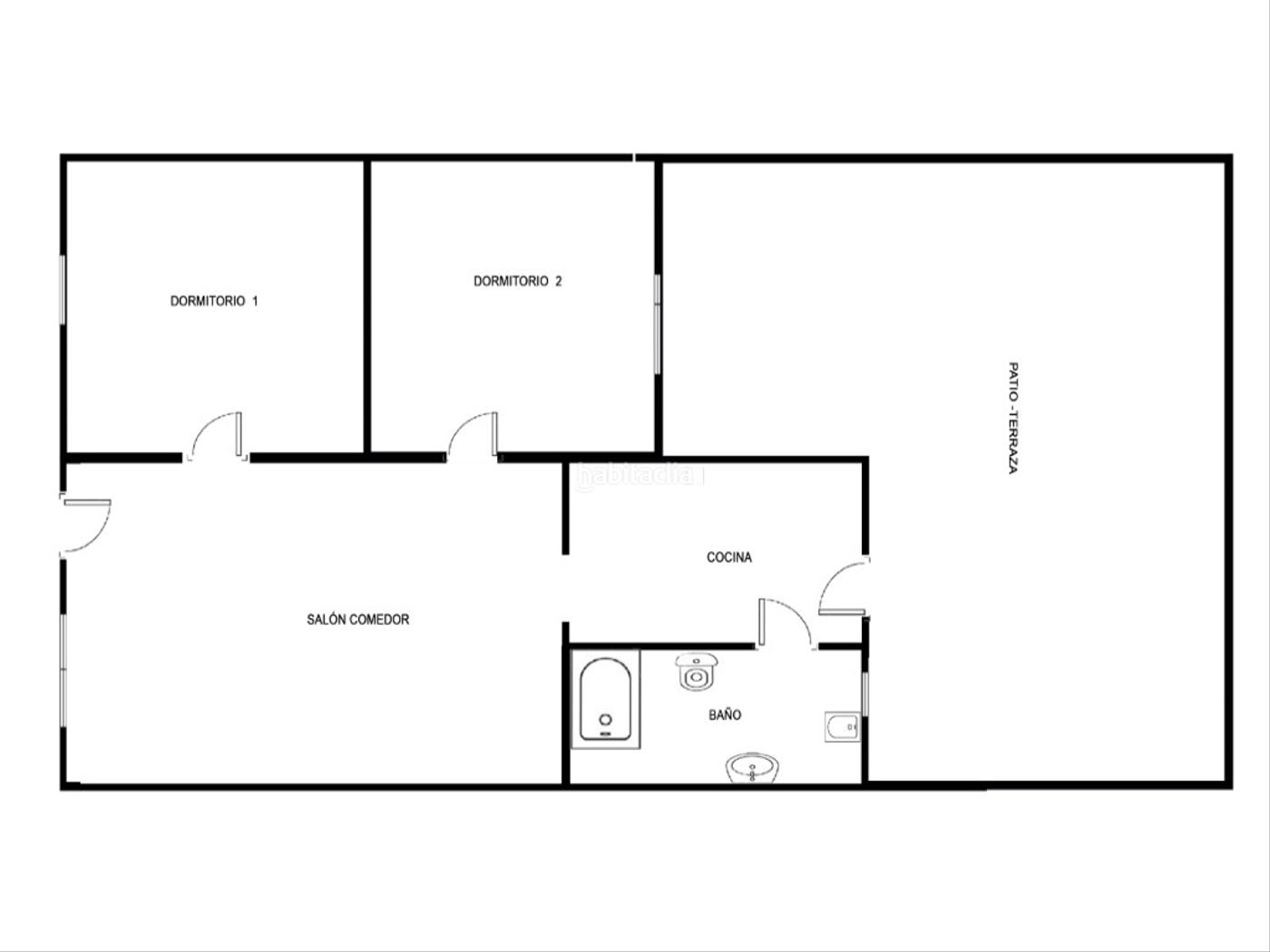
  • 82 m2
  • 2 hab.
  • 1 bany
  • 2.317 €/m2

planta baja de 2 dormitorios con gran terraza descubierta a 200 metros de la playa

Magnífica oportunidad!!!
ATENCIÓN INVERSORES, CON ENTRADA INDEPENDIENTE PARA LA NUEVA NORMATIVA DE LICENCIA TURISTICA

**Piso en Venta en Fuengirola - ¡Tu Ocasión de Vivir Cerca del Mar!**

Descubre este encantador piso en planta baja, con entrada independiente, idealmente ubicado a tan solo tres calles del paseo marítimo de Fuengirola y a cinco minutos caminando de la playa.

Con una superficie de 80 m² este céntrico inmueble para reformar cuenta con dos amplios dormitorios y un salón comedor luminoso que invita a disfrutar de momentos inolvidables junto al mar, La cocina independiente ofrece la posibilidad de integrarse al salón, creando un espacio más abierto y acogedor.

Uno de los mayores atractivos de este piso es su espectacular patio-terraza descubierta de aproximadamente 35 m², orientada al sur.

Este espacio es perfecto para disfrutar del clima soleado de la Costa del Sol, donde puedes crear tu propio rincón chill out o instalar una barbacoa para disfrutar con amigos y familiares.

Además, el inmueble presenta un gran potencial para reformas, permitiendo la posibilidad de construir un tercer dormitorio, otro baño o alguna nueva estancia en la zona exterior.

Situado en una tercera línea de playa, este piso también se encuentra cerca de restaurantes, comercios, todo tipo de servicios, colegios y parada de autobús, lo que lo convierte en una opción ideal tanto como primera vivienda como para vacaciones o inversión con alta rentabilidad en alquiler.

Otra ventaja a destacar es que no paga nada de comunidad

¡No pierdas la oportunidad de visitarlo! Las visitas están disponibles incluso en festivos. ¡Contáctanos y ven a conocer tu nuevo hogar!
#ref:PLA_248

última modificació

Distribució

  • 2 habitacions
  • Superfície 82 m2
  • 1 bany

Característiques generals

  • Sense aire acondicionat
  • Certificat energètic :
    Consumo:
    G
    999 kW h m2 / año
    Emisiones:
    G
    999 kg CO2 m2 / año

Equipament comunitari

  • Sense ascensor
Anunci: 40988000000138

Ubicació

Puerto Deportivo Calle Arapiles

Navega pel mapa fent clic a sobre
190.000 € Preu de l´anunci
4.875 €/m2€/m2 población
2.317 €/m2€/m2 de l´anunci
52% més econòmic que la mitja*
Veure evolució €/m2 a Fuengirola
T´avisem quan tinguem un anunci com aquest? Crea la teva alerta i nosaltres t´avisarem per correu electrònic quan hi hagin nous anuncis o siguin modificats
 

Contactar JCH SERVICIOS INMOBILIARIOS

Referència de l´anunci habitaclia/PLA_248:

Veuràs el telèfon després d´enviar el contacte a l´anunciant perquè et pugui atendre.
Veuràs el telèfon després de contactar
Enviant…