Comentari guardat!
Només ho veuràs tú
Comment saved!
Afegeix la teva valoració i/o un comentari per aquest anunci. Només el veuràs tu

Terreny residencial a Canyamel Capdepera

  • 345 m2
  • 2.609 €/m2

Terreno edificable con proyecto aprobado y vistas a la montaña cerca del golf de Canyamel

Esta parcela se encuentra en una ubicación privilegiada, a solo unos minutos del campo de golf de Canyamel. Ofrece vistas despejadas del entorno y una excelente conexión con las localidades de Capdepera y Artà, combinando de manera ideal tranquilidad y proximidad a las opciones de ocio.

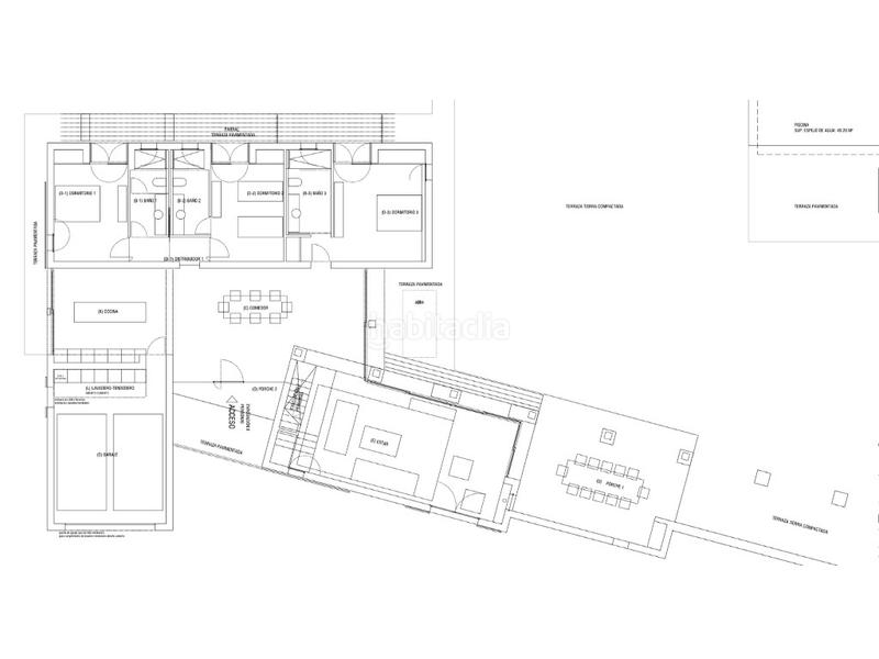
El proyecto aprobado contempla la construcción de una vivienda de dos plantas con estancias luminosas y amplias que se abren a terrazas y jardines, integrando armoniosamente el espacio exterior.

Se prevén cuatro dormitorios y cuatro baños, así como amplias terrazas. Un jardín con piscina complementa el concepto de vivienda y crea espacios para el ocio y la relajación al aire libre.

La parcela es fácilmente accesible desde la carretera principal, mientras que el entorno tranquilo garantiza privacidad.

Gracias a la cercanía de campos de golf, clubes de tenis y pádel, este proyecto no solo constituye un hogar atractivo, sino también una excelente oportunidad de inversión para quienes valoran el estilo de vida mallorquín en un entorno privilegiado.

El precio corresponde al terreno con proyecto, sin incluir la ejecución de la construcción.

Aviso Legal: Las visualizaciones que se muestran aquí tienen fines ilustrativos únicamente y son representaciones artísticas no vinculantes. Se reserva el derecho a realizar cambios en el diseño, las características y las dimensiones de la propiedad.
#ref:6818

última modificació

Distribució

  • Superfície 345 m2
Anunci: 46408000001805

Ubicació

Canyamel

Navega pel mapa fent clic a sobre
T´avisem quan tinguem un anunci com aquest? Crea la teva alerta i nosaltres t´avisarem per correu electrònic quan hi hagin nous anuncis o siguin modificats
 

Contactar Living Blue Mallorca

Referència de l´anunci habitaclia/6818:

Veuràs el telèfon després d´enviar el contacte a l´anunciant perquè et pugui atendre.
Veuràs el telèfon després de contactar
Enviant…