Favorito y comentario
Només ho veuràs tú
Terreny residencial a Consell
Característiques principals
- 14.400 m2
- 56 €/m2
Informació detallada
Bonito terreno edificable con proyecto y vistas a la Tramuntana cerca de Consell
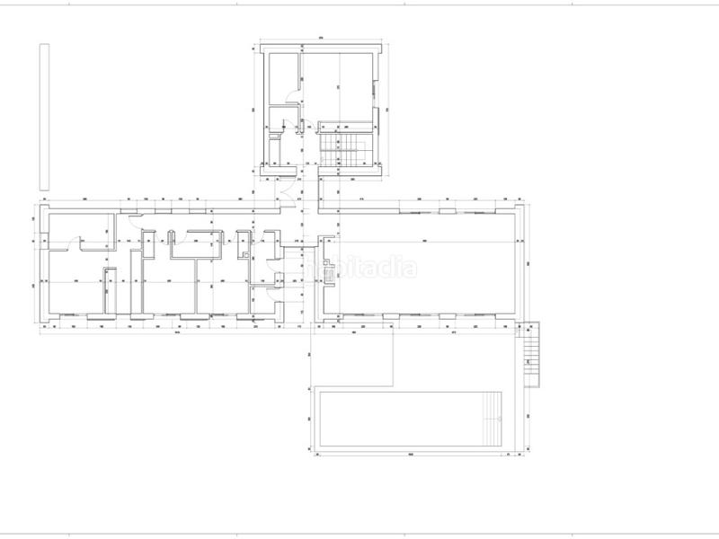
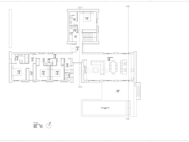
Aquí podría construirse su casa de ensueño. En un terreno de 14.400 m2 con unas vistas espectaculares, es posible construir una casa con una superficie total de 425 m2.
La propiedad planificada incluye una casa de campo independiente con cuatro dormitorios, cuatro baños, una cocina espaciosa, un sótano y una luminosa zona de estar. En el exterior, se prevén amplias terrazas y una piscina.
La construcción puede comenzar en cualquier momento, y el proyecto aún puede ser modificado según sus preferencias.
El precio indicado se refiere al terreno con el proyecto planificado, pero no incluye la finalización de la casa.
#ref:5213
última modificació
Distribució
- Superfície 14400 m2
Galeria
Ubicació
Navega pel mapa fent clic a sobre

habitaclia.com no es responsabilitza dels errors que la informació mostrada en aquest mapa pugui contenir. L´usuari serà el responsable de l´ús que doni a aquesta informació.
T´avisem quan tinguem un anunci com aquest?
Crea la teva alerta i nosaltres t´avisarem per correu electrònic quan hi hagin nous anuncis o siguin modificats