Comentari guardat!
Només ho veuràs tú
Comment saved!
Afegeix la teva valoració i/o un comentari per aquest anunci. Només el veuràs tu
180.000 € Avisa´m si baixa
ha baixat 80.000 €

Terreny residencial a Corbera de Llobregat

  • 200 m2
  • 900 €/m2

CASA DE 175M2 A REFORMAR

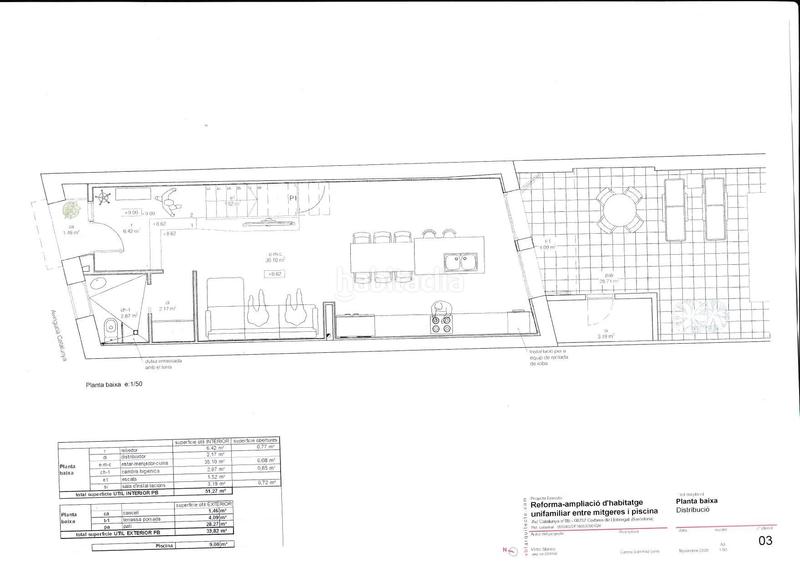
Casa de 175m2 construidos, A REFORMAR, en el centro del caso urbano de Corbera de Llobregat sobre parcela de 320m2, con proyecto y licencia urbanística de obras para ejecutar la reforma de una vivienda con 4 dormitorios, 2 baños, 1 aseo, salón-comedor, cocina, terraza con piscina y jardín. Situación inmejorable. Junto a comercios, bus y todos los servicios. Con dos accesos, uno desde calle peatonal y aceso rodado deesde calle Rafamans.

Demanar més dades a l´anunciant

última modificació

Distribució

  • Superfície 200 m2
Anunci: 5320004428168

Ubicació

Navega pel mapa fent clic a sobre
T´avisem quan tinguem un anunci com aquest? Crea la teva alerta i nosaltres t´avisarem per correu electrònic quan hi hagin nous anuncis o siguin modificats
 

Contactar FINCASVICTORIA

Referència de l´anunci habitaclia/109:

Veuràs el telèfon després d´enviar el contacte a l´anunciant perquè et pugui atendre.
Veuràs el telèfon després de contactar
Enviant…