Favorito y comentario
Terreny residencial a Centre Figueres
Característiques principals
- 93 m2
- 1.935 €/m2
Informació detallada
Solar edificable en venta en Figueres
Se ofrece en venta este solar edificable situado dentro del casco urbano de Figueres, en una calle residencial muy tranquila y con poco tráfico.
La parcela, de forma rectangular, tiene unas dimensiones de 6,45 metros de ancho por 14,5 metros de fondo. La fachada principal, orientada al norte, da a la calle, y el terreno cuenta con una pendiente plana. La antigua construcción ya ha sido demolida y el solar se encuentra actualmente vallado, con puerta de acceso instalada.
Proyecto incluido en el precio
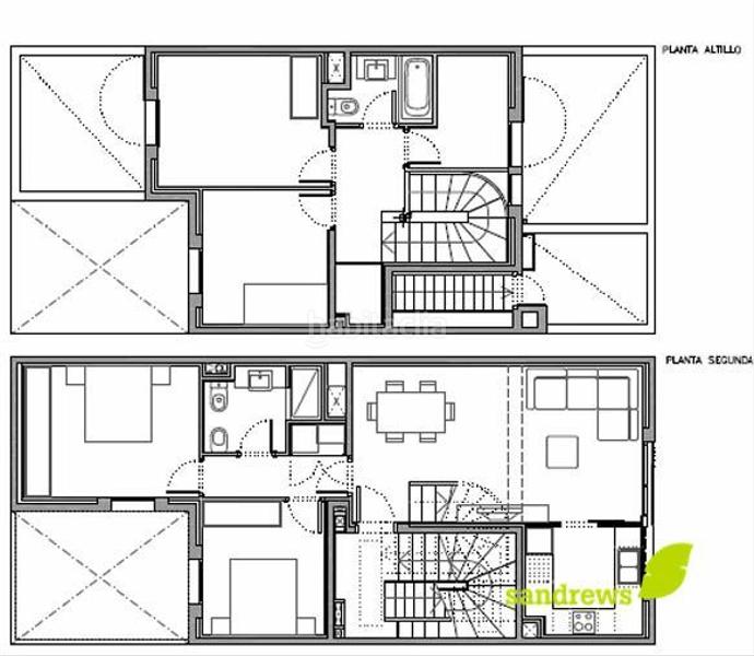
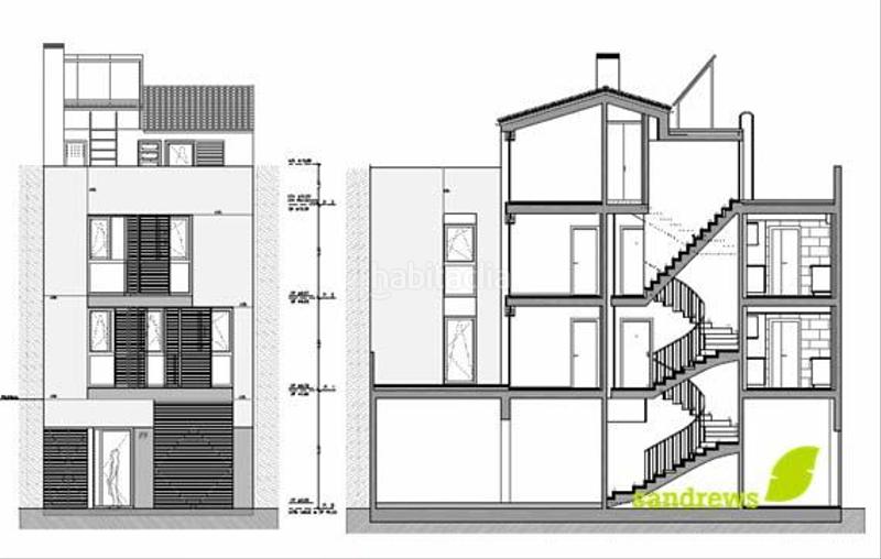
La venta incluye un proyecto arquitectónico que contempla la construcción de un edificio de tres plantas, distribuido de la siguiente manera:
Planta baja (83,45 m² útiles): Garaje de 66,45 m², vestíbulo y zonas comunes.
Primera planta (68,95 m² útiles): Vivienda con 2 dormitorios, 1 baño completo, cocina independiente, zona de lavadero y terraza de 12 m².
Segunda planta con altillo (109,15 m² útiles): Vivienda tipo dúplex con 2 dormitorios, 1 baño completo, cocina independiente, lavadero, un segundo baño, y un altillo con 1 baño adicional, tres estancias polivalentes y dos terrazas de 10 m² y 8 m² respectivamente.
Una excelente oportunidad para promotores, inversores o particulares que deseen construir en una ubicación estratégica de Figueres.
Contáctenos para más información o concertar una visita. [IW]
última modificació
Distribució
- Superfície 93 m2
Galeria
Ubicació
Centre
