Comentari guardat!
Només ho veuràs tú
Comment saved!
Afegeix la teva valoració i/o un comentari per aquest anunci. Només el veuràs tu

Terreny residencial a Parroquias de Santiago Santiago de Compostela

Rua Redondelo

  • 1.089 m2
  • 101 €/m2

PARCELA LLANA EN MARROZOS

Terreno urbanizable en venta en Marrozos, a solo 15 minutos de Santiago de Compostela

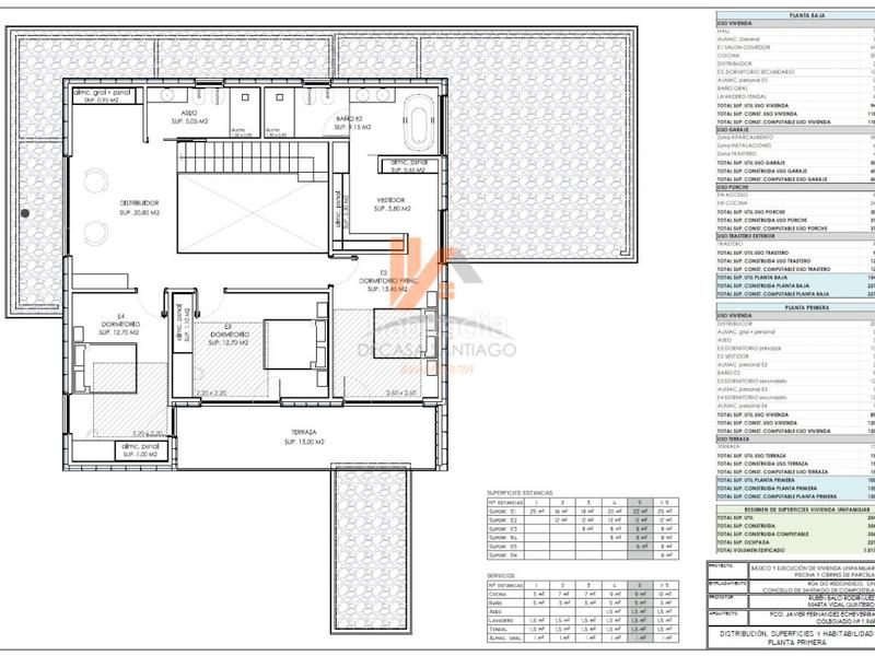
Con licencia de obra aprobada para vivienda unifamiliar, piscina y cerramiento.

Si estás buscando un lugar tranquilo para construir tu hogar, rodeado de naturaleza y con la comodidad de tener Santiago de Compostela a un paso, esta puede ser tu oportunidad.

Se vende terreno urbanizable, concretamente la finca nº 393 A de la concentración parcelaria de Eixo-Marrozos. Se trata de una parcela con proyecto avanzado y todas las facilidades urbanísticas para empezar a construir de inmediato.

La finca cuenta ya con licencia de obra aprobada para una vivienda unifamiliar con piscina y cerramiento, lo que supone un importante ahorro de tiempo y trámites. Además, dispone de certificado de instalación eléctrica emitido por la Xunta de Galicia, y se encuentra regulada bajo la Ordenanza Urbanística nº 14, que permite un desarrollo residencial adaptado al entorno.

¿Por qué elegir Marrozos?

Marrozos es una zona residencial tranquila, rodeada de zonas verdes y con un entorno natural privilegiado, perfecta para quienes buscan paz y calidad de vida sin renunciar a la cercanía de la ciudad. En menos de 15 minutos en coche se llega al corazón de Santiago, lo que hace que esta ubicación sea ideal tanto para residencia habitual como para segunda vivienda.

Una oportunidad para:

Familias que sueñan con construir su hogar a medida, en un entorno seguro y con buena comunicación.

Inversores que buscan desarrollar un proyecto residencial con excelente proyección de valor en una de las áreas más demandadas en las afueras de Santiago.

No dejes pasar esta ocasión de adquirir un terreno con todas las garantías, listo para empezar a construir.

Para más información o concertar una visita, no dudes en ponerte en contacto.
Tu próximo proyecto puede empezar aquí, en Marrozos.

Tu nueva vida empieza con nosotros.

(url oculto)
#ref:TER_3721

última modificació

Distribució

  • Superfície 1089 m2
Anunci: 31179000002282

Ubicació

Parroquias de Santiago Rua Redondelo

Navega pel mapa fent clic a sobre
T´avisem quan tinguem un anunci com aquest? Crea la teva alerta i nosaltres t´avisarem per correu electrònic quan hi hagin nous anuncis o siguin modificats
 

Contactar DECASA SANTIAGO INMOBILIARIA

Referència de l´anunci habitaclia/TER_3721:

Veuràs el telèfon després d´enviar el contacte a l´anunciant perquè et pugui atendre.
Veuràs el telèfon després de contactar
Enviant…