Comentari guardat!
Només ho veuràs tú
Comment saved!
Afegeix la teva valoració i/o un comentari per aquest anunci. Només el veuràs tu

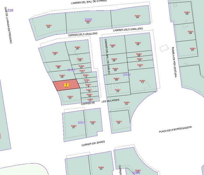
Terreny residencial a carrer del bages s/n a Nord Vilanova i la Geltrú

  • 241 m2
  • 730 €/m2

TERRENO URBANIZABLE DOS CASAS

U PROYECTO EMPIEZA AQUÍ – PARCELA URBANIZABLE EN LLIMONET 2, VILANOVA I LA GELTRÚ

Descubre esta parcela de 254 m² ubicada en Llimonet 2, la nueva área residencial de Vilanova i la Geltrú. Una zona en pleno desarrollo, moderna, conectada y pensada para vivir con calidad.

. Suelo urbanizable
. Posibilidad de construir 2 casas apareadas
. Orientación oeste, ideal para disfrutar del sol de tarde
. Próxima al nuevo centro comercial
. Excelentes conexiones con las salidas y entradas del municipio

Construye dos viviendas contemporáneas en una ubicación estratégica, rodeada de servicios, espacios verdes y con todo el potencial de revalorización que ofrece una zona en crecimiento.

Ideal para promotores, inversores o autopromoción familiar.
Una inversión con visión de futuro en una de las ciudades más dinámicas del Garraf.

Llimonet 2 no es solo un lugar para vivir, es una oportunidad para construir.

Solicita más información y empieza a dar forma a tu proyecto.

última modificació

Distribució

  • Superfície 241 m2
Anunci: 28080004038590

Ubicació

Nord Carrer del Bages s/n

Navega pel mapa fent clic a sobre
T´avisem quan tinguem un anunci com aquest? Crea la teva alerta i nosaltres t´avisarem per correu electrònic quan hi hagin nous anuncis o siguin modificats
 

Contactar PONTO GRUP IMMOBILIARI

Referència de l´anunci habitaclia/PONT-0118:

Veuràs el telèfon després d´enviar el contacte a l´anunciant perquè et pugui atendre.
Veuràs el telèfon després de contactar
Enviant…