Comentari guardat!
Només ho veuràs tú
Comment saved!
Afegeix la teva valoració i/o un comentari per aquest anunci. Només el veuràs tu
185.000 € Avisa´m si baixa
ha baixat 30.000 €

Terreny residencial a carrer dels roures 11 a Castellvell del Camp

Carrer dels Roures 11

  • 773 m2
  • 239 €/m2

Solar a 5 minuts de Reus

T’agradaria viure a la natura però a 5 minuts de Reus?

Aquest solar de casi 800 m2 es el lloc ideal per edificar-hi el teu somni.
Es tracta del solar més alt de la Flor del Camp, (per qui no ho sàpiga, la banda oest de Castellmoster). És, de fet, la punta del turó, fet que fa que ningú et tapi i hi hagi unes vistes impressionants a 360º.

T’imagines assegut al sofà i veure tota la muntanya i els pics allunyar-se? O assegut al llit i veure l’ermita de santa Anna i el mar de fons? Per mi és una de les grans virtuts del lloc, amb la gràcia d’estar comprant el croissant dels diumenges al forn de Castellvell, a 5 minuts a peu.

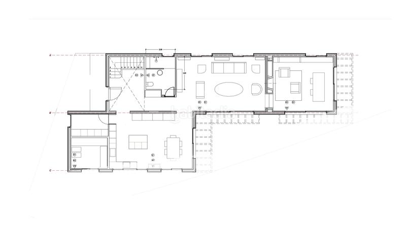
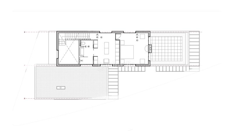
Ara mateix ja hi ha un projecte amb llicencia concedida, pel que si t’encaixa, et pots posar a construir demà mateix. El projecte està molt ben pensat perquè els mateixos propietaris son els arquitectes; han fet prestat especial atenció a que la casa funcioni de manera passiva, segueix un estudi de feng shui per potenciar la felicitat i la prosperitat de la llar i mil coses més. La distribució optimitza cadascun dels seus 240 m2 i aconsegueix uns espais amplis però acollidors, amb una relació amb l’exterior com n’estic segur que mai abans has vist (no hi havia res més important en ment mentre avançava el projecte!)

última modificació

Distribució

  • Superfície 773 m2
Anunci: 23449004310733

Ubicació

Carrer dels Roures 11

Navega pel mapa fent clic a sobre
T´avisem quan tinguem un anunci com aquest? Crea la teva alerta i nosaltres t´avisarem per correu electrònic quan hi hagin nous anuncis o siguin modificats
 

Contactar SYNERGIE IMMOBILIÈRE

Referència de l´anunci habitaclia/SI23:

Veuràs el telèfon després d´enviar el contacte a l´anunciant perquè et pugui atendre.
Veuràs el telèfon després de contactar
Enviant…