Favorito y comentario
Terreny residencial a Castellnou-Can Mir-Can Solà Rubí
Característiques principals
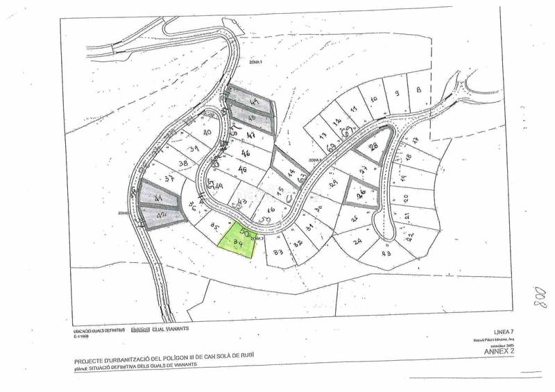
- 488 m2
- 212 €/m2
Informació detallada
Terreno
Rubí : Se ofrece terreno urbanizable en venta en la tranquila zona de CAN SOLA. Con una superficie de 488 m², Fachada 20mts. este espacio permite edificar y desarrollar un proyecto adaptado a tus necesidades.
La ubicación es ideal para quienes buscan un entorno residencial, con acceso a servicios y comodidades. Disfruta de la tranquilidad de la zona mientras te encuentras a pocos minutos del centro de Rubí, donde encontrarás tiendas, restaurantes y transporte público.
Este terreno representa una excelente opción para construir la casa de tus sueños o invertir en un proyecto de desarrollo. La posibilidad de edificación ofrece flexibilidad para diseñar un espacio que se ajuste a tus aspiraciones.
No dejes pasar esta oportunidad de adquirir un terreno en una ubicación en crecimiento. Para más información, no dudes en contactarnos y descubre todo lo que este terreno puede ofrecerte.
VENTA: 103.630€. Ref. 12222.
última modificació
Distribució
- Superfície 488 m2
Galeria
Ubicació
Castellnou-Can Mir-Can Solà
