Comentari guardat!
Només ho veuràs tú
Comment saved!
Afegeix la teva valoració i/o un comentari per aquest anunci. Només el veuràs tu

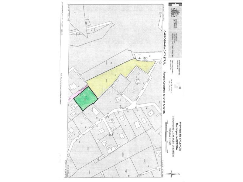
Terreny residencial a Los Pinares-La Masia Bétera

  • 1.293 m2
  • 77 €/m2

TERRENO URBANO EN BETERA

TERRENO URBANO EN URBANIZACIÓN LOS PINARES DE BÉTERA CON UNA SUPERFICIE DE 1.293M2. La urbanización cuenta con transporte público y transporte escolar. El terreno se encuentra sin vallar y sin altas de luz ni agua. En estos momentos el ayuntamiento de Bétera no concede permiso de construcción en esta zona.
#ref:SÒL_16

Demanar més dades a l´anunciant

última modificació

Distribució

  • Superfície 1293 m2
Anunci: 49166000000006

Ubicació

Los Pinares-La Masia N/A

Navega pel mapa fent clic a sobre
T´avisem quan tinguem un anunci com aquest? Crea la teva alerta i nosaltres t´avisarem per correu electrònic quan hi hagin nous anuncis o siguin modificats
 

Contactar BELLINMO

Referència de l´anunci habitaclia/SÒL_16:

Veuràs el telèfon després d´enviar el contacte a l´anunciant perquè et pugui atendre.
Veuràs el telèfon després de contactar
Enviant…