Favorito y comentario
Només ho veuràs tú
Terreny residencial a quevedo 78 a La Salut Badalona
Característiques principals
- 85 m2
- 2.941 €/m2
Informació detallada
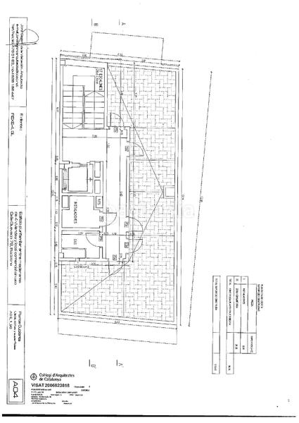
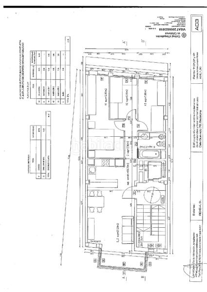
Terreno urbano
Fincas VIAGA ofrece este terreno situado delante del mercado de la Salut de Badalona.
Entre medianeras, listo para empezar a construir. Pueden construirse 4 pisos más local. Podría construirse una quinta vivienda en planta baja adaptándola a la normativa.
Los pisos son aproximadamente de 70 m² cada uno.
Se entrega proyecto básico, proyecto ejecutivo, estudio geotécnico, proyecto energía solar. Todo ello se realizó en el año 2007 deberá repasarse con la normativa actual.
Para más información contacten directamente con FINCAS VIAGA.
última modificació
Distribució
- Superfície 85 m2
Galeria
Ubicació
La Salut QUEVEDO 78
Navega pel mapa fent clic a sobre

habitaclia.com no es responsabilitza dels errors que la informació mostrada en aquest mapa pugui contenir. L´usuari serà el responsable de l´ús que doni a aquesta informació.
T´avisem quan tinguem un anunci com aquest?
Crea la teva alerta i nosaltres t´avisarem per correu electrònic quan hi hagin nous anuncis o siguin modificats