Comentari guardat!
Només ho veuràs tú
Comment saved!
Afegeix la teva valoració i/o un comentari per aquest anunci. Només el veuràs tu

Terreny residencial a travesía madrid cádiz 17 a Andújar

Travesía Madrid Cádiz 17

  • 260 m2
  • 442 €/m2

Solar Avenida Andalucía

Se vende casa en Andújar para derribar y hacerse la casa de sus sueños en uno de los mejores sitios de la ciudad, cercano a Ayuntamiento, colegios, supermercados. Para más información póngase en contacto con nosotros y se le muestra planos, metros, ubicación...

Demanar més dades a l´anunciant

última modificació

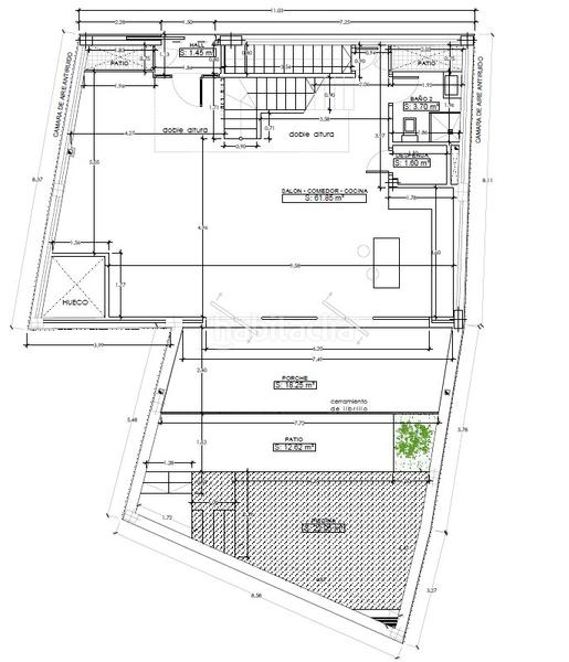
Distribució

  • Superfície 260 m2
Anunci: 46302000000411

Ubicació

Travesía Madrid Cádiz 17

Navega pel mapa fent clic a sobre
T´avisem quan tinguem un anunci com aquest? Crea la teva alerta i nosaltres t´avisarem per correu electrònic quan hi hagin nous anuncis o siguin modificats
 

Contactar Inmobiliaria Muñoz & Salas

Referència de l´anunci habitaclia/1115:

Veuràs el telèfon després d´enviar el contacte a l´anunciant perquè et pugui atendre.
Veuràs el telèfon després de contactar
Enviant…