Favorito y comentario
Terreny residencial a tres 4 a Santa Perpètua de Mogoda
Característiques principals
- 238 m2
- 794 €/m2
Informació detallada
TERRENO PARCELA Urbana SOLAR en VENTA en LA FLORIDA de SANTA PERPÈTUA DE MOGODA Camp de Fútbol Vallès Oriental
TERRENO – PARCELA Urbana – SOLAR en VENTA en LA FLORIDA de SANTA PERPÈTUA DE MOGODA – Camp de Fútbol (Vallès Oriental - BCN):
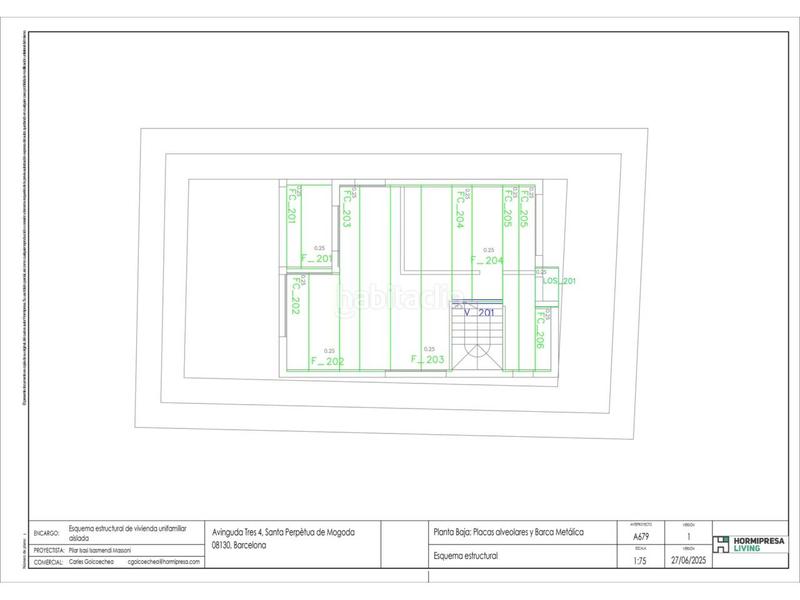
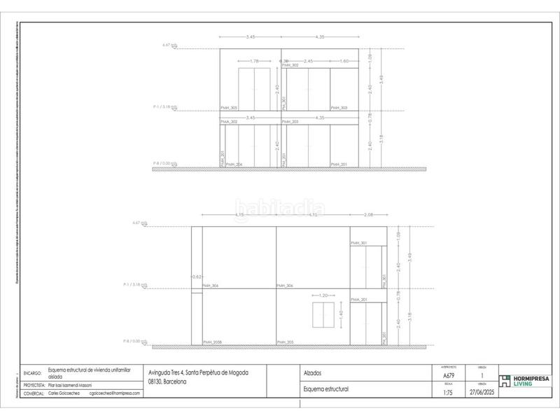
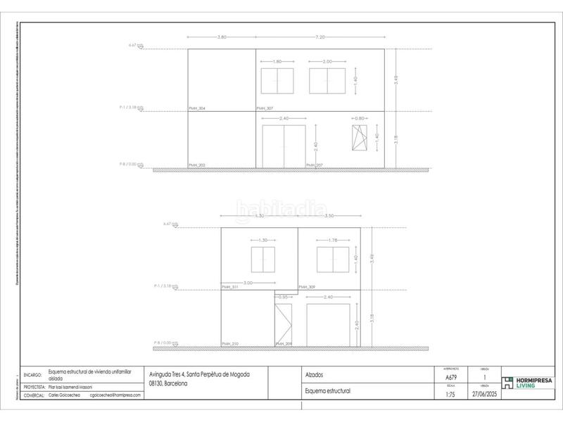
Venta de parcela urbana llana de 238 m² para vivienda aislada residencial de máx. 285,60 m² en 3 plantas (PB + 2PP).
A 4 minutos – 1,5 kilómetros del Ayuntamiento, a 750 m de las estaciones de tren R8 y R3. Al lado del campo de Fútbol, zonas verdes y C.A.P. Cerca de todos los servicios y comercios.
• Superficie Catastral Parcela Avinguda Tres, 4: 238 m². Forma Rectangular. Fachada Orientada al Nordeste de 12,5 m. Lateral Izquierdo 20 m. Lateral Derecho 20 m. Fondo 12,5 m. Parcela llana. A 58 m. de Altura media S. N. M. Para Vivienda Unifamiliar Aislada de PB + 2PP. Calificación Urbanística 2.3a. Parcela Mínima 200 m². Coeficiente de edificabilidad neta 0,75 m².t./m².t. Porcentaje máximo de ocupación parcela 40%, (95,20 m² por planta). Altura Máxima de Construcción 10,30 m. Separación a vial: 3 m. Resto: 2 m. Suministros de agua y luz a pie de parcela. Dispone de planos de anteproyecto.
No pierdas la oportunidad de adquirir este terreno con gran potencial para desarrollar un proyecto único.
última modificació
Distribució
- Superfície 238 m2
Galeria
Ubicació
Tres 4
