Favorito y comentario
Finca rústica a 5 723 a Sant Llorenç des Cardassar
Característiques principals
- 14.200 m2
- 20 €/m2
Informació detallada
Finca rustica con proyecto en san llorenc
Pendiente de entrega de licencia .
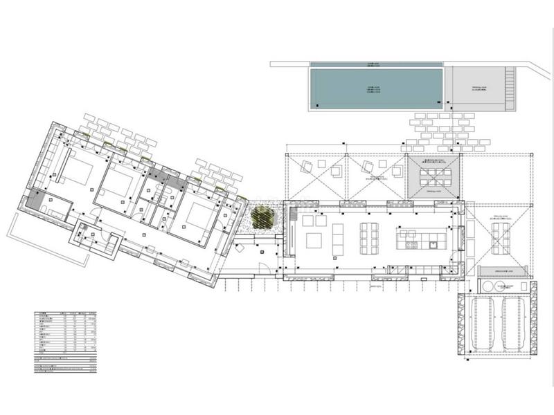
¿Buscas una finca rústica con mucho potencial? No te pierdas esta oportunidad única de adquirir en San llorenc des cardassar , son REIG una parcela de 14.000 m2 con un proyecto básico para construir una casa de ensueño. La casa del proyecto tendrá 285 m2 construidos distribuidos en 3 habitaciones en suite con vestidores, una estancia abierta con salón, comedor y cocina de 65 m2, y un aseo de invitados. Se puede ampliar por el cambio de normativa. Tendremos la licencia pronto , La finca está situada en una zona tranquila, muy cerca del pueblo, con vistas despejadas y pocos vecinos. Además, cuenta con un pozo en trámite y posibilidad de conexión eléctrica. No dejes escapar esta ocasión de vivir en un entorno natural con todas las comodidades. Contacta con nosotros para más información y visita.
Es importante saber que se puede construir el doble de superficie porque ha cambiado la ley entre la tramitación y la obtención de la licencia .
última modificació
Distribució
- Superfície 14200 m2
Galeria
Ubicació
5 723
