Comentari guardat!
Només ho veuràs tú
Comment saved!
Afegeix la teva valoració i/o un comentari per aquest anunci. Només el veuràs tu

Finca rústica a 5 723 a Sant Llorenç des Cardassar

5 723

  • 14.200 m2
  • 20 €/m2

Finca rustica con proyecto en san llorenc


Pendiente de entrega de licencia .

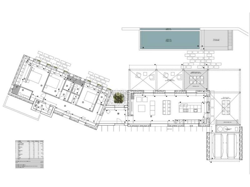
¿Buscas una finca rústica con mucho potencial? No te pierdas esta oportunidad única de adquirir en San llorenc des cardassar , son REIG una parcela de 14.000 m2 con un proyecto básico para construir una casa de ensueño. La casa del proyecto tendrá 285 m2 construidos distribuidos en 3 habitaciones en suite con vestidores, una estancia abierta con salón, comedor y cocina de 65 m2, y un aseo de invitados. Se puede ampliar por el cambio de normativa. Tendremos la licencia pronto , La finca está situada en una zona tranquila, muy cerca del pueblo, con vistas despejadas y pocos vecinos. Además, cuenta con un pozo en trámite y posibilidad de conexión eléctrica. No dejes escapar esta ocasión de vivir en un entorno natural con todas las comodidades. Contacta con nosotros para más información y visita.
Es importante saber que se puede construir el doble de superficie porque ha cambiado la ley entre la tramitación y la obtención de la licencia .





















última modificació

Distribució

  • Superfície 14200 m2
Anunci: 12872003599499

Ubicació

5 723

Navega pel mapa fent clic a sobre
T´avisem quan tinguem un anunci com aquest? Crea la teva alerta i nosaltres t´avisarem per correu electrònic quan hi hagin nous anuncis o siguin modificats
 

Contactar PASCUAL ASSOCIATS

Referència de l´anunci habitaclia/T 1485:

Veuràs el telèfon després d´enviar el contacte a l´anunciant perquè et pugui atendre.
Veuràs el telèfon després de contactar
Enviant…