Comentari guardat!
Només ho veuràs tú
Comment saved!
Afegeix la teva valoració i/o un comentari per aquest anunci. Només el veuràs tu

Finca rústica a Aldeamayor de San Martín

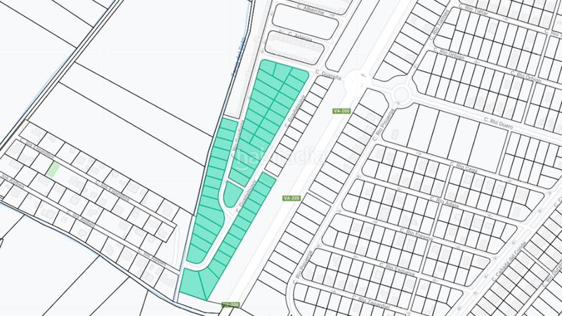
C/ Río Guadalquivir

  • 504 m2
  • 30 €/m2

Solvia Inmobiliaria Suelo Urbano Aldeamayor de San Martín

Parcelas de Suelo Urbano consolidado situado en Aldeamayor de San Martín.

Se trata de parcelas desde 504 m² hasta 1360 m² que admiten una edificabilidad aproximada de 208 m²t, cada parcela. Su uso principal es el residencial, viviendas unifamiliares de hasta 2 alturas. La orografía es uniforme y plana y cuenta con todas las infraestructuras básicas necesarias (alumbrado, suministro de agua, suministro de electricidad, viales, acerado, etc.)

Los suelos se ubican en una zona de expansión, a 22 km de Valladolid, en la Urbanización El Soto, muy cerca de las poblaciones como Aldeamayor de San Martin, Boecillo y Laguna de Duero entre otras. A 10 minutos de la localidad. Dispone de buenas comunicaciones con el resto de poblaciones tanto por la A-601 y la VA-200.

En la población podemos encontrar los servicios básicos para la vida diaria como supermercados, restaurantes, centros educativos, oficinas bancarias, otros negocios comerciales, etc.


Es, por tanto, una interesante inversión para obtener rentabilidad, en una zona tranquila. Con los servicios de Solvia podrá conocer las posibilidades reales de este solar y valorar sus posibilidades de inversión. Empiece ahora mismo pidiendo más información. Un responsable cercano a usted le atenderá personalmente.

última modificació

Distribució

  • Superfície 504 m2
Anunci: 41124000093138

Ubicació

C/ Río Guadalquivir

Navega pel mapa fent clic a sobre
T´avisem quan tinguem un anunci com aquest? Crea la teva alerta i nosaltres t´avisarem per correu electrònic quan hi hagin nous anuncis o siguin modificats
 

Contactar Solvia Inmobiliaria

Referència de l´anunci habitaclia/CG-90823-0004:

Veuràs el telèfon després d´enviar el contacte a l´anunciant perquè et pugui atendre.
Veuràs el telèfon després de contactar
Enviant…