Favorito y comentario
Només ho veuràs tú
185.000 €
Avisa´m si baixa
Xalet amb aparcament a área de Ames Ames
Característiques principals
- 350 m2
- 5 hab.
- 3 banys
- 529 €/m2
Informació detallada
Chalet en Roxos
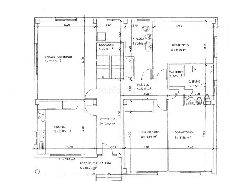
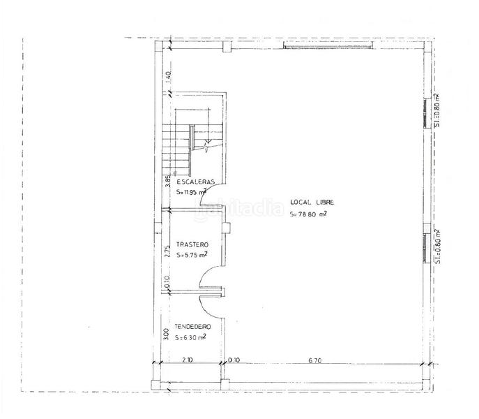
Chalet en Ventosa en Roxos individual con finca de 1.184 metros y excelentes vistas, en construcción, estructura acabada en el sótano con hormigón, planta primera y bajo cubierta en ladrillo, tejado a 4 aguas, por dentro diáfana, acabado cada uno a su gusto, en el plano de obra se dividiría en sótano con garaje para 3 coches, trastero y tendedero, planta baja salón comedor, cocina, 3 dormitorios y 2 baños, en la bajo cubierta 2 dormitorios y un baño.
Demanar més dades a l´anunciantúltima modificació
Distribució
- 5 habitacions
- Superfície 350 m2
- Terreny 1184 m2
- 3 banys
- Cuina Tipus Office: No
- Traster
Característiques generals
- Plaça aparcament
- Sense aire acondicionat
- Any construcció 2012
- Exempt
Galeria
Ubicació
Área de Ames Aldea Ventosa
Navega pel mapa fent clic a sobre
habitaclia.com no es responsabilitza dels errors que la informació mostrada en aquest mapa pugui contenir. L´usuari serà el responsable de l´ús que doni a aquesta informació.
Dades comparatives
185.000 € Preu de l´anunci
2.064 €/m2€/m2 población
529 €/m2€/m2 de l´anunci
74% més econòmic que la mitja*
*
Al preu de l´immoble influeixen molts factors que poden explicar les variacions respecte del preu mitjà: la ubicació dins de la població, la seva orientació, l´estat de conservació, les qualitats constructives, els equipaments, ...
T´avisem quan tinguem un anunci com aquest?
Crea la teva alerta i nosaltres t´avisarem per correu electrònic quan hi hagin nous anuncis o siguin modificats