Favorito y comentario
Xalet amb calefacció aparcament piscina a Valdoviño
Característiques principals
- 190 m2
- 3 hab.
- 3 banys
- 2.368 €/m2
Informació detallada
¡Descubre tu hogar ideal en Valdoviño!
Te presentamos un magnífico chalet con piscina y vistas impresionantes a la playa de Pantín, un verdadero paraíso para los amantes de la naturaleza, la serenidad y el surf.
Este espectacular chalet está diseñado para ofrecer el máximo confort y lujo:
Sótano: Incluye un amplio garaje para dos coches, una lavandería y un aseo.
Planta principal: Cocina moderna equipada con electrodomésticos de alta gama, un espacioso salón-comedor con chimenea, techos altos y acceso a dos encantadores porches.
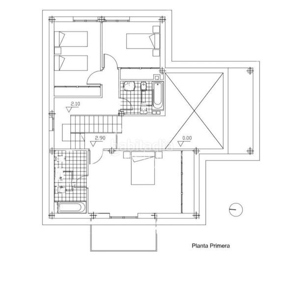
Planta alta: Dos amplias habitaciones con armarios empotrados y un baño con ducha de hidromasaje, además de una lujosa habitación principal de 20 m² con un baño privado que cuenta con bañera y ducha de hidromasaje. Esta habitación se abre a una generosa terraza con vistas al mar.
La propiedad está situada en una finca dividida en tres niveles, completamente cerrada, con portal automático, acceso peatonal y un espacio para almacenar el equipo de jardinería.
Construida con materiales de alta calidad, el chalet cuenta con preinstalación para domótica, tejado de teja del país con aislamiento, acristalamiento con rotura de puente térmico, termo eléctrico de 150 litros y calefacción eléctrica. El suministro de agua proviene de un pozo de barrena, con agua analizada y apta para el consumo. Además, dispone de una fosa séptica y está preparada para conectarse al alcantarillado.
La piscina de fibra, con capacidad de 30 m³ de agua dulce, es el lugar perfecto para relajarse y disfrutar del entorno natural. La casa, orientada al oeste y protegida del nordeste, incluye también un robot para la limpieza de la piscina, una barbacoa y un cenador, ideal para reuniones familiares y sociales.
Esta propiedad es una oportunidad única para familias que buscan un hogar donde crear recuerdos inolvidables o para inversores interesados en una residencia de lujo en una ubicación inigualable.
¡No dejes pasar esta oportunidad! Contacta con nosotros para más información y descubre todo lo que este increíble chalet tiene para ofrecerte.
última modificació
Distribució
- 3 habitacions
- Superfície 190 m2
- Terreny 778 m2
- 3 banys
- Traster
Característiques generals
- Calefacció
- Piscina pròpia
- Plaça aparcament
- Moblat
- Any construcció 2008
Galeria
Ubicació
