Visita virtual
Comentari guardat!
Només ho veuràs tú
Comment saved!
Afegeix la teva valoració i/o un comentari per aquest anunci. Només el veuràs tu
Consultar preu Avísam si canvia

Xalet amb calefacció aparcament piscina a Arxiu Sant Cugat del Vallès

  • 735 m2
  • 4 hab.
  • 5 banys

Villa de lujo en venta en lArxiu Sant Cugat

Lucas Fox International Properties se complace en presentar en exclusiva esta villa de alto standing y de diseño en l'Arxiu de Sant Cugat del Vallés (Barcelona), en un entorno privilegiado.

Esta impresionante casa se sitúa sobre una parcela completamente orientada al sur y destaca por su luz natural y sus vistas panorámicas. Goza de una ubicación estratégica, a un paso del centro de Sant Cugat, de la estación de tren y de los mejores servicios, colegios y centros deportivos de la zona, sin renunciar a un entorno tranquilo y privado.

Al cruzar la entrada con puerta blindada, nos da la bienvenida un amplio recibidor de entrada que da paso a los diferentes espacios. En la planta principal, se dispone un salón de 40 m² con grandes ventanales y con un comedor de 20 m², ideal para reuniones familiares o sociales. La cocina, de generosas dimensiones, está totalmente equipada. Además, se ofrece un cine en casa de 20 m², para toda la familia. Desde el salón, accedemos a la terraza, el porche y el jardín, con piscina y césped natural, ideal para disfrutar del clima mediterráneo durante todo el año.

En la primera planta, se encuentra la zona de noche. Aquí, se ofrecen tres dormitorios con sendos baños privados, incluido el dormitorio principal de 80 m², que cuenta con dos vestidores independientes, un espacio de estudio privado, la zona de descanso y un baño que parece sacado de una revista de diseño. Los otros dos dormitorios, de casi 30 m² cada uno, incluyen baño privado y zona de vestidor, mientras que un dormitorio adicional completa esta planta, junto con una sala de lavandería totalmente equipada.

La segunda planta ofrece un solárium con vistas espectaculares; el rincón ideal para desconectar y contemplar el horizonte de Sant Cugat.

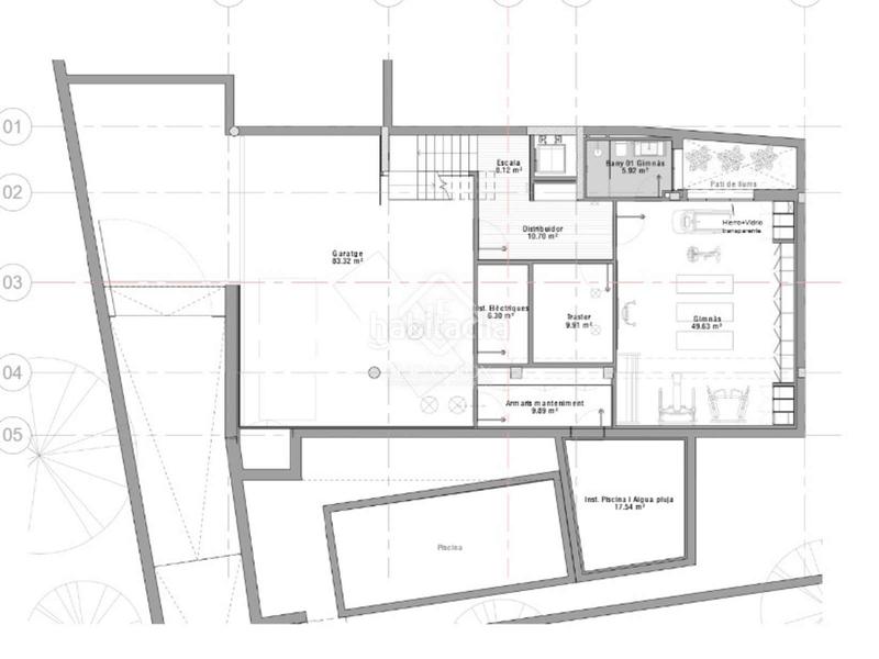
En la planta semisótano, la vivienda dispone de un aparcamiento de 90 m² con capacidad para varios vehículos, un gimnasio privado de 50 m² con baño y acceso a un patio exterior, espacio de almacenaje y salas de máquinas.

Esta lujosa vivienda goza de acabados de gran calidad y una calificación energética A, para un máximo ahorro, con sistemas de seguridad avanzados, persianas blindadas, climatización, calefacción central, domótica y un ascensor que conecta todas las plantas.

Para más información o para organizar una visita privada confidencial, no dude en ponerse en contacto.

última modificació

Distribució

  • 4 habitacions
  • Superfície 735 m2
  • Terreny 813 m2
  • 5 banys
  • Traster

Característiques generals

  • Calefacció
  • Piscina pròpia
  • Plaça aparcament
  • Aire Acondicionat
  • Certificat energètic :
    Consumo:
    A
    11 kW h m2 / año
    Emisiones:
    A
    1 kg CO2 m2 / año
Anunci: 4975004336728

Ubicació

Arxiu

Navega pel mapa fent clic a sobre
T´avisem quan tinguem un anunci com aquest? Crea la teva alerta i nosaltres t´avisarem per correu electrònic quan hi hagin nous anuncis o siguin modificats
 

Contactar LUCAS FOX SANT CUGAT

Referència de l´anunci habitaclia/STC55899:

Veuràs el telèfon després d´enviar el contacte a l´anunciant perquè et pugui atendre.
Veuràs el telèfon després de contactar
Enviant…