Favorito y comentario
Xalet amb calefacció aparcament piscina a Bacarés-Manresa-Bonaire Alcúdia
Característiques principals
- 295 m2
- 5 hab.
- 3 banys
- 3.220 €/m2
Informació detallada
EXCLUSIVA VILLA CON PISCINA EN BONAIRE
Amperiza, Somos una agencia inmobiliaria local con más de 15 años de experiencia. Ofrecemos ventajas en negociación de precios gracias a nuestros bajos costos publicitarios y en esta ocasión, Os presentamos y damos avance pendiente de mas fotografías, de esta preciosa villa de venta en Exclusiva que redefine la elegancia y la comodidad en la prestigiosa zona de "Mal Pas-Bonaire".
Este tesoro inmobiliario, construido en 2008 con meticulosa atención a los detalles, se encuentra a poca distancia de las playas de arena y en proximidad al exclusivo Club Náutico de Bonaire. Donde en sus inmediaciones encontrará bares, restaurantes, farmacia, etc.
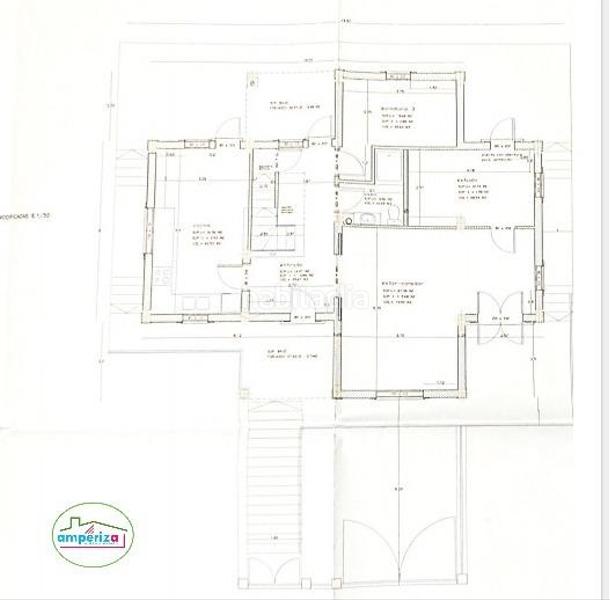
Sumérgete en el encanto de esta residencia de cinco dormitorios, donde la calidad y el estilo se entrelazan armoniosamente. Dos de los dormitorios se encuentran en la planta baja, mientras que otros dos, de generosas dimensiones y con baño completo en suite, te invitan a un oasis de lujo con vistas al mar desde una terraza privada en el primer piso. El quinto dormitorio, situado en el semisótano, ha sido transformado en un estudio de trabajo inundado de luz natural, gracias a sus ventanas estratégicamente ubicadas y una ventilación perfecta.
La cocina, un epicentro de funcionalidad , deleitará a los amantes de la gastronomía con sus muebles de madera de alta calidad, encimera de granito y una salida estratégica al porche y la piscina. Equipada con electrodomésticos de alta gama y una nevera americana, esta cocina es el corazón de la casa, donde la creación culinaria se combina con la vida al aire libre.
La casa no solo es estética, sino también funcional. Un hall de entrada te da la bienvenida, mientras que el gran salón comedor, con dos espacios claramente diferenciados, se llena de luz a través de sus amplias ventanas. En el semisótano, a pie de calle, aguarda un generoso garaje con espacio para varios coches, zona de lavandería con puertas de acceso desde la calle mecánicas para tu comodidad.
La joya indiscutible de esta propiedad es su espléndida piscina y el jardín circundante, adornado con árboles frutales que incluyen limoneros, higueras y ciruelos. La serenidad de esta área se ve realzada por la tranquilidad de la ubicación, permitiéndote llegar al centro del pueblo con un pintoresco paseo de menos de dos kilómetros.
En resumen, esta villa no es solo una casa; es una experiencia de vida. Un santuario de lujo, funcionalidad y serenidad que espera a que descubras sus secretos y te dejes enamorar por cada rincón cuidadosamente diseñado. ¿Estás listo para dar el siguiente paso hacia la vida que mereces? La puerta a esta experiencia única acaba de abrirse.
última modificació
Distribució
- 5 habitacions
- Superfície 295 m2
- 3 banys
- Safareig
- Traster
Característiques generals
- Calefacció
- Piscina pròpia
- Plaça aparcament
- Aire Acondicionat
- Any construcció 2008
- Vistes al mar
Galeria
Ubicació
Bacarés-Manresa-Bonaire Avenida MAL PAS. DEL
