Comentari guardat!
Només ho veuràs tú
Comment saved!
Afegeix la teva valoració i/o un comentari per aquest anunci. Només el veuràs tu

Xalet amb calefacció aparcament piscina a Cau del Llop - Super Fener - Fener Llançà

  • 353 m2
  • 8 hab.
  • 6 banys
  • 2.720 €/m2

Casa villa de obra nueva de 8 dormitorios en venta en Llanca, Costa Brava

Estamos encantados de ofrecer en venta esta villa de nueva construcción de 8 dormitorio en Llança en el norte de la Costa Brava.

La villa está situada en una ubicación privilegiada, a tan solo unos metros del camino de ronda y del mar. La playa del Cau del Llop está a tan solo 10 minutos a pie y el centro y puerto de Llança a 20 minutos a pie.

La vivienda fue construida por sus actuales propietarios para acomodar a su gran familia, y está diseñada de tal manera que se puede dividir fácilmente en tres apartamentos separados, cada uno con su propia entrada independiente, salón, cocina, dormitorios, baño y terraza.

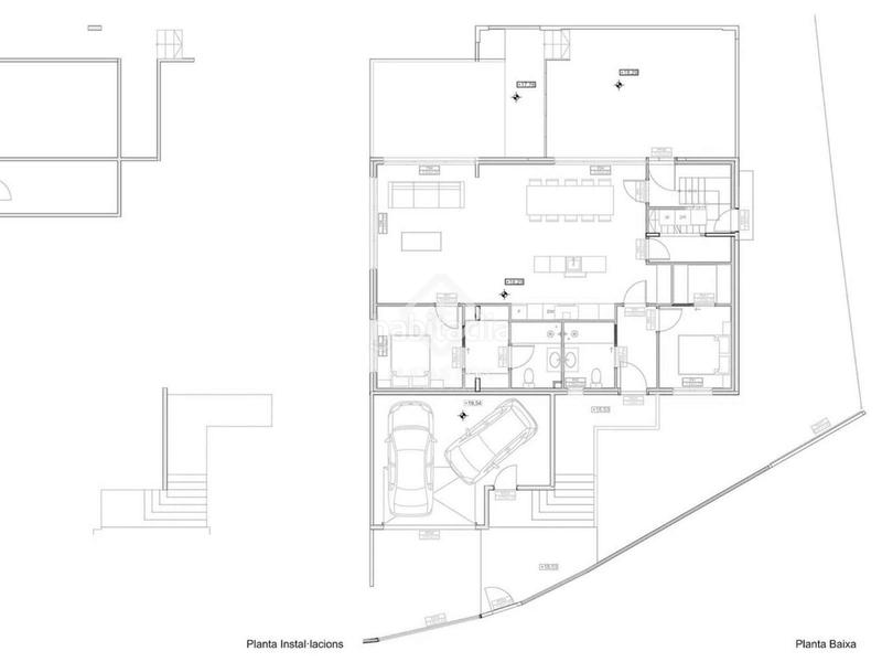
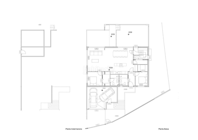
Al entrar a la vivienda desde el nivel de la calle, nos encontramos con el recibidor de entrada. Al salir del recibidor, encontramos un dormitorio/oficina y un baño. También al salir del recibidor de entrada, llegamos a la gran cocina abierta y estancia de recepción con grandes ventanales de suelo a techo que ofrecen una gran cantidad de luz natural y vistas al jardín.

Desde el salón se accede al amplio dormitorio principal con armarios empotrados y baño en suite. Desde el salón se accede a la primera planta salón unas escaleras donde encontramos seis dormitorios, dos baños, dos aseos de invitados y dos salas de recepción. Las dos salas de recepción están equipadas con una preinstalación para una cocina. Ambas salas de recepción se abren a una gran terraza que disfruta de preciosas vistas al mar y a la montaña.

Partiendo de la estancia de recepción principal en la planta baja encontramos una gran terraza cubierta, perfecta para cenar al aire libre en los meses de verano, y la piscina infinita. Se ha instalado un sistema de riego automático en el jardín que rodea la vivienda.

La vivienda también se beneficia de un gran garaje doble.

Por favor contáctenos para más información.

última modificació

Distribució

  • 8 habitacions
  • Superfície 353 m2
  • Terreny 535 m2
  • 6 banys

Característiques generals

  • Calefacció
  • Piscina pròpia
  • Plaça aparcament
  • Aire Acondicionat
  • Certificat energètic :
    Consumo:
    G
    999 kW h m2 / año
    Emisiones:
    G
    999 kg CO2 m2 / año
Anunci: 4975004336485

Ubicació

Cau del Llop - Super Fener - Fener

Navega pel mapa fent clic a sobre
960.000 € Preu de l´anunci
2.494 €/m2€/m2 población
2.720 €/m2€/m2 de l´anunci
Veure evolució €/m2 a Llançà
T´avisem quan tinguem un anunci com aquest? Crea la teva alerta i nosaltres t´avisarem per correu electrònic quan hi hagin nous anuncis o siguin modificats
 

Contactar Lucas Fox Costa Brava

Referència de l´anunci habitaclia/CBR53999:

Veuràs el telèfon després d´enviar el contacte a l´anunciant perquè et pugui atendre.
Veuràs el telèfon després de contactar
Enviant…