Favorito y comentario
Xalet amb calefacció aparcament piscina a El francas Coma-ruga
Característiques principals
- 250 m2
- 4 hab.
- 3 banys
- 1.900 €/m2
Informació detallada
Cerca de todos los servicios y playa
FRANCÀS- Casa de ensueño, un chalet en la playa lleno de encanto: El exterior de la casa ha sido decorado con elementos antiguos que evocan el modernismo catalán del siglo XIX, como farolas, bancos de piedra y barandillas de forja, originales de la época.
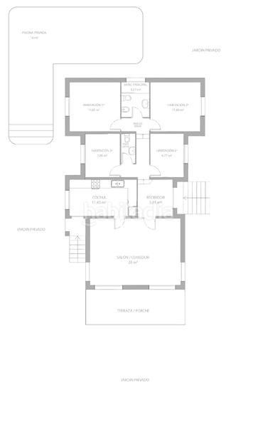
Construida en torno la década de los 80 sobre una parcela en esquina de 950 m2. es un precioso chalet a cuatro vientos de más de 250m2 que está rodeado por un enorme jardín, piscina privada y barbacoa. Distribución ideal: La casa se divide en dos plantas: una planta principal con amplios espacios para la vida familiar y en la planta inferior un garaje enorme con baño y bodega. PLANTA PRINCIPAL:
Se accede al recibidor, que distribuye a un lado un gran salón comedor muy luminoso, con grandes ventanas orientadas hacia el jardín y con acceso a una gran terraza exterior. El salón comedor está acondicionado con calefacción individual programable (gas natural), aire acondicionado y una preciosa chimenea de leña. Todas las ventanas de la casa llevan doble cristal Climalit A través de una puerta en el comedor, se accede a la gran cocina que recientemente ha sido ampliada y reformada. Un amplio espacio completamente equipado donde hay cabida extra para una mesa y todo tipo de electrodomésticos incluido el lavavajillas y/o la lavadora. La cocina tiene una ventana y una segunda puerta al exterior que da acceso directo a la piscina y el jardín por la parte trasera de la casa. En el otro lado del recibidor se encuentran 4 grandes dormitorios dobles, dos de ellos con armarios empotrados y todos con ventanas Climalit orientadas a la la piscina o al jardín.
Todos disponen de calefacción individual con radiadores y aire acondicionado.
Junto a los dormitorios hay 2 cuartos de baño recientemente reformados, 1 aseo de cortesía y al final del pasillo, un amplio y luminoso baño completo que incluye una ducha adaptada con ventana al exterior de la casa. PLANTA INFERIOR:
La planta inferior corresponde a un enorme garaje con espacio hasta 6 coches, incluye un baño de cortesía con plato de ducha, un enorme depósito de agua (cisterna) que sirve para el riego del jardín y economiza el consumo de agua, un pequeño trastero cerrado con puerta y finalmente una preciosa bodega rústica, donde se puede conservar el vino en su punto.
EL JARDÍN, PISCINA, BARBACOA:
Precioso jardín con piscina que la rodea completamente, es tranquilo y soleado, a la vez muy fresco con brisa de mar en verano.
El jardín tiene el suelo de grama española y se riega automáticamente por un sistema automático de aspersión. Hay plantados varios árboles como, olivos, frutales, ornamentales y palmeras. Desde el Jardín se accede a una enorme piscina de unos 16m2 aprox, diseñada en forma de L que rodea parte más privada de la casa y dispone de una zona para tomar el sol o celebrar agradables cenas en verano.
Finalmente, cerca de la piscina hay una gran barbacoa de piedra, con zona de cocina, Ubicada a pocos minutos caminando de la playa, es ideal para parejas o familias, como residencia de vacaciones o como residencia principal. Dispone de todo tipo de servicios fundamentales como supermercados, farmacia, gasolinera, panadería o restaurantes, muy cercanos y sin necesidad de usar el coche. Casa-chalet al lado de la playa, de gran tamaño y situada en la tranquila urbanización El Francàs de Coma-ruga (Tarragona). Con accesos por las autopistas AP7, C32 o por la carretera N340 y a 40 minutos Barcelona y 20´ de Tarragona.
( El PVP indicado no incluye impuestos ni gastos de Escritura ).
PARA PROPIETARIOS:
1.¿Necesitas vender para comprar? donpiso puede comprar tu casa entregándote el 10% en 48 horas y el resto ante Notario.
2. ¿Problemas económicos? Te ayudamos entregándote una cantidad pactada cada mes mientras vendemos tu casa. Sin gastos de ningún tipo.
3. ¿Vendes un piso con hipoteca? mientras gestionamos la venta, te adelantamos la cuota mensual.
4. ¿Reformas? al mejor precio y te las financiamos dentro de la hipoteca.
5. ¿La mejor hipoteca? en donpiso la encuentras y con condiciones preferentes.
6. ¿Herencias y divorcios? te ayudamos y coordinamos todo.
Infórmate:
última modificació
Distribució
- 4 habitacions
- Superfície 250 m2
- Terreny 950 m2
- 3 banys
- Traster
Característiques generals
- Calefacció
- Piscina pròpia
- Plaça aparcament
- Aire Acondicionat
- Any construcció 1975
Galeria
Ubicació
El francas
