Favorito y comentario
Xalet amb piscina a Fenals Platja d´Aro
Característiques principals
- 587 m2
- 7 hab.
- 7 banys
- 2.726 €/m2
Informació detallada
Magnifico chaletcasa situada en el centro de Platja dAro, a 5 min andando de la playa.
GRUPO HG ofrece magnifico chalet/casa situada en el centro de Platja d'Aro, a 5 min andando de la playa.
Se trata de una vivienda ideal, sobre un solar de casi 600 m2 con mucho espacio y mucha luz. La casa se distribuye en tres plantas.
Empezando desde abajó tenemos un amplio garaje de 174m2 con capacidad de 5 coches, gimnasio totalmente equipado con sauna, ducha y aseo.
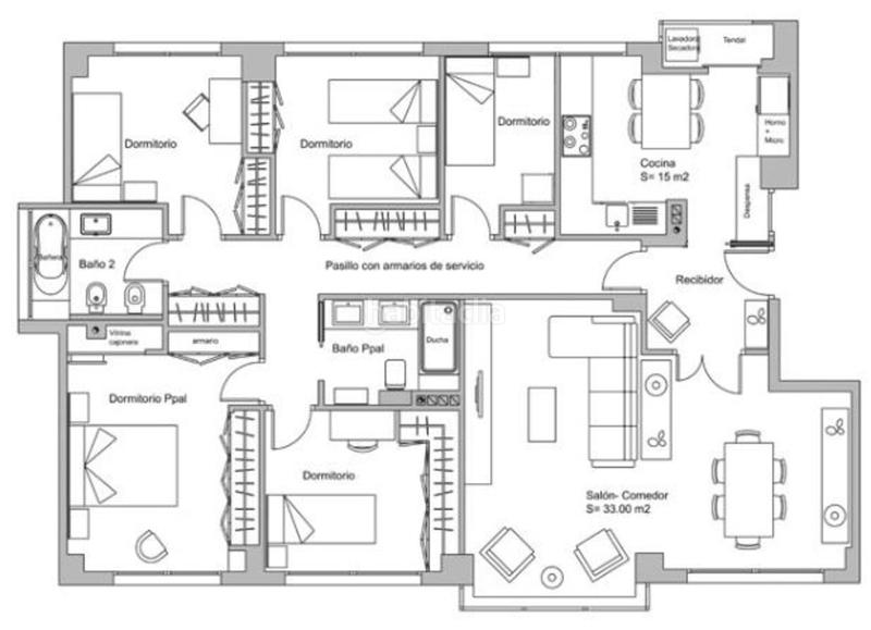
En la primera planta encontramos un magnifico salón comedor con cocina abierta (equipada con lavadero y despensa). Desde el salón comedor con acceso a una porche cubierto con puertas abatibles y otra salida a la terraza principal del jardín y zona de la piscina. También tenemos un aseo de invitados y dos habitaciones dobles con vestidor y baño completo propio.
La segunda planta consta de 5 habitaciones, dos tipo suites con terraza independiente, tres habitaciones dobles y un baño completo, todas con mucha luminosidad.
Toda la casa transmite sensación de amplitud. Acabados de primera calidad, cerramientos de aluminio con doble vidrio, persianas eléctricas, calefacción de gas-oil, aire acondicionado, alarma, preparada para instalación de chimenea.
Si desea más información relacionada con la compra de un inmueble no dude en contactar con nosotros. Le atenderemos de la mejor forma posible para asesorarle durante todo el proceso de compra.
El precio de venta no incluye impuestos ni gastos de gestión.
última modificació
Distribució
- 7 habitacions
- Superfície 587 m2
- Terreny 587 m2
- 7 banys
Característiques generals
- Piscina pròpia
- Aire Acondicionat
Equipament comunitari
- Piscina Comunitària
Galeria
Ubicació
Fenals Avenida Fanals
