Comentari guardat!
Només ho veuràs tú
Comment saved!
Afegeix la teva valoració i/o un comentari per aquest anunci. Només el veuràs tu
2.300.000 € Avisa´m si baixa

Xalet amb calefacció aparcament piscina a La Fustera Benissa

  • 267 m2
  • 4 hab.
  • 4 banys
  • 8.614 €/m2

Villa de lujo de obra nueva con vistas panorámicas al mar desde Moraira hasta el Peñon de Ifach, a tan solo 5 minutos en coche a la playa de arena La Fustera.



Esta villa moderna de lujo es un diseño de la arquitecta Dalia ALBA muy conocida por sus espectaculares proyectos con varios premios y publicaciones en la zona costera de la Comunidad Valenciana.



Esta villa moderna con las impresionantes vistas al mar está ubicada en una parcela tranquila con pendiente. Por esa razón ninguna edificación puede tapar las vistas al mar.



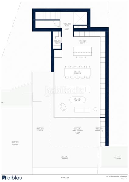
La villa se compone de varios cubos y tiene un total de 267,50 m2 repartidos en 4 niveles con terrazas y un patio con zonas verdes para dar mucho frescor a la vivienda. La distribución es la siguiente.



Planta cubierta: Ahí se encuentra el hall con vistas impresionantes al mar con escalera y ascensor



Planta alta: En esta planta se encuentran 2 dormitorios en suite



Planta baja: En esta planta se encuentran otros 2 dormitorios en suite y una lavandería. Una de los suites es el dormitorio principal con acceso a una terraza donde se pueden disfrutar de las vistas al Mediterráneo.



Planta semisótano: Ahí está ubicada la zona de día, cocina abierta con isla, zona de comedor y salón, aseo y trastero. Desde esta zona hay vistas a un patio con acceso a través de una puerta de cristal, un sitio perfecto para un jardín vertical. Desde el salón se llega a la terraza con zona de BBQ y a la piscina desbordante con unas vistas espectaculares al mar.



La villa incluye altas calidades como aire acondicionado con conductos frío/ calor, cocina de lujo etc. Por favor pidan nuestro book con la memoria de calidades, disponible en varios idiomas.



La constructora Design Villas Moraira tiene en su equipo la arquitecta Dalia ALBA y la interiorista Luna que pueden convertir este proyecto en algo único con un diseño de interiores hecha a su medida y gusto.












última modificació

Distribució

  • 4 habitacions
  • Superfície 267 m2
  • Terreny 1448 m2
  • 4 banys

Característiques generals

  • Calefacció
  • Piscina pròpia
  • Plaça aparcament
  • Aire Acondicionat
  • Any construcció 2025
  • Certificat energètic :
    Consumo:
    G
    999 kW h m2 / año
    Emisiones:
    G
    999 kg CO2 m2 / año
Anunci: 55377000000025

Ubicació

La Fustera

Navega pel mapa fent clic a sobre
2.300.000 € Preu de l´anunci
2.726 €/m2€/m2 población
8.614 €/m2€/m2 de l´anunci
Quant t´agradaria pagar?
Veure evolució €/m2 a Benissa
T´avisem quan tinguem un anunci com aquest? Crea la teva alerta i nosaltres t´avisarem per correu electrònic quan hi hagin nous anuncis o siguin modificats
 

Contactar Design Villas Moraira

Referència de l´anunci habitaclia/4047E:

Veuràs el telèfon després d´enviar el contacte a l´anunciant perquè et pugui atendre.
Veuràs el telèfon després de contactar
Enviant…