Favorito y comentario
Xalet amb calefacció aparcament piscina a Limonar Málaga
Característiques principals
- 428 m2
- 5 hab.
- 3 banys
- 3.152 €/m2
Informació detallada
VILLA CON ENCANTO EN LOS MONTES DE MÁLAGA
Una verdadera joya en los Montes de Málaga...En la misma ciudad, en un lugar y entorno privilegiado, se encuentra esta exclusiva Villa, en la zona conocida como Pinares de Olletas.
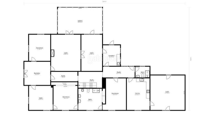
Sobre una parcela de 3.140 m2 se asienta esta excepcional Villa, distribuida en dos plantas.
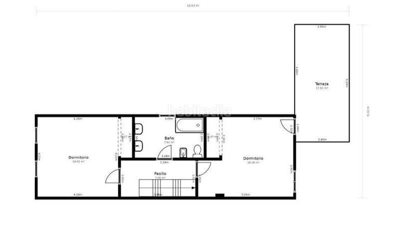
Consta de un espacioso y coqueto recibidor, un precioso salón muy acogedor con chimenea, una gran terraza acristalada, que da paso a otro encantador comedor de estilo andaluz, una bonita sala de estar, cinco dormitorios, con armarios empotrados, tres cuartos de baño, dos de ellos con ducha y otro, con bañera, una cocina y un hermoso patio. Sus techos altos y materiales utilizados en su construcción, contribuyen a que esta propiedad sea única, con detalles que no le dejarán indiferente...
Todas las estancias gozan de una extraordinaria luminosidad. Su exterior es impresionante... amplios jardines con hamacas para tomar el sol alrededor de su piscina, zona de barbacoa, una barra de bar, un porche cubierto, un maravilloso cenador rodeado de vegetación natural, zona de aparcamiento y esparcimiento...Un lugar idílico donde, sin duda, disfrutará de cada rincón de esta increíble vivienda...
Muy bien comunicada con la Autovía del Mediterráneo y a escasos diez minutos del centro de la ciudad y sus lugares emblemáticos como la Catedral, la Alcazaba...
También dispone de licencia turística. Es una propiedad muy diferente que le ofrece muchas posibilidades, pero mejor, llámeme que estaré encantada de ampliarle información...!!
En cumplimiento del artículo 10 del R. D. de la Junta de Andalucía de 11 de octubre por el que se aprueba el reglamento de información al consumidor en la compraventa y arrendamiento de viviendas en Andalucía, informamos al cliente que tiene a su disposición la Ficha Informativa en Segundas o Ulteriores Transmisiones De Viviendas. El precio de la vivienda no incluye los gastos de compraventa (notaría, registro e I.T.P.).
No existen honorarios de intermediación inmobiliaria adicionales al precio de venta.
En cumplimiento del artículo 10 del R. D. de la Junta de Andalucía de 11 de octubre por el que se aprueba el reglamento de información al consumidor en la compraventa y arrendamiento de viviendas en Andalucía, informamos al cliente que tiene a su disposición la Ficha Informativa en Segundas o Ulteriores Transmisiones De Viviendas. El precio de la vivienda no incluye los gastos de compraventa (notaría, registro e I.T.P.).
No existen honorarios de intermediación inmobiliaria adicionales al precio de venta.
Este inmueble se comercializa mediante sistema de Multiexclusiva, lo que implica que, cualquier gestión realizada en relación con la compraventa del mismo, habrá de ser realizada a través de nuestra agencia. Por ese motivo, le rogamos que se ponga en contacto directo con nosotros sin importunar directamente a propietarios u ocupantes de la propiedad.
última modificació
Distribució
- 5 habitacions
- Superfície 428 m2
- Terreny 3140 m2
- 3 banys
- Traster
Característiques generals
- Calefacció
- Piscina pròpia
- Plaça aparcament
- Aire Acondicionat
- Any construcció 1930
- A prop de transport públic
Galeria
Ubicació
Limonar Camino COLMENAR
