Favorito y comentario
Xalet amb aparcament a Los Alvarados - Fuente los Berros - Bandama Santa Brígida
Característiques principals
- 302 m2
- 5 hab.
- 4 banys
- 1.904 €/m2
Informació detallada
Chalet independiente con encanto y amplios jardines en Monte Lentiscal
Vilches Gestiones&Servicios te presenta esta magnífica propiedad en el Monte Lentiscal
Chalet independiente con encanto y amplios jardines en Monte Lentiscal
En el corazón del Monte Lentiscal se alza esta maravillosa vivienda unifamiliar, rodeada de naturaleza, calma y luz. Un hogar pensado para quienes desean disfrutar de la tranquilidad sin renunciar a la comodidad de estar cerca de todo. Construida sobre una parcela de 740 m², esta propiedad combina amplitud, bienestar y el encanto de la vida familiar al aire libre.
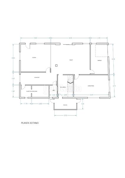
Con una superficie total construida de 301,27 m², la vivienda se distribuye en dos plantas y buhardilla, con estancias amplias, luminosas y perfectamente aprovechadas.
- Planta baja (142,50 m²): actualmente alberga la zona principal de vida diaria. Dispone de una amplia cocina independiente, un salón-comedor muy acogedor con salida directa al jardín, una sala de juegos o zona polivalente, baño completo, almacén y acceso directo tanto al garaje como a la zona de barbacoa. Un espacio pensado para disfrutar en familia, compartir comidas, celebrar reuniones y sentir el hogar en cada rincón.
-Planta alta (136,27 m²): se destina a la zona de descanso y trabajo. Cuenta con dormitorios amplios y luminosos, baños completos, un vestidor y una sala de trabajo o estudio, perfecta para teletrabajar o utilizar como dormitorio adicional. Desde esta planta se disfrutan bonitas vistas al entorno natural que envuelve la vivienda.
-Buhardilla (22,50 m²): un rincón íntimo y encantador que invita al descanso, la lectura o a crear un espacio personal según las necesidades de cada familia.
El exterior de la casa es una prolongación de su encanto: un gran jardín privado, muy bien cuidado, con zona de asadero, espacio para juegos y una amplia entrada donde pueden aparcar varios vehículos. Un entorno sereno que ofrece privacidad, vistas despejadas y una atmósfera de auténtico hogar.
La vivienda se encuentra en perfecto estado de conservación y lista para entrar a vivir. Su diseño funcional, la luminosidad de sus estancias y el entorno verde que la rodea la convierten en una propiedad única en Monte Lentiscal, ideal para familias que valoran el espacio, el confort y la vida tranquila.
Gastos de notaría, registro e impuestos no incluidos en el precio.
La información contenida en este anuncio es orientativa y puede estar sujeta a errores u omisiones involuntarias.
última modificació
Distribució
- 5 habitacions
- Superfície 302 m2
- Terreny 740 m2
- 4 banys
- Cuina Tipus Office
- Traster
Característiques generals
- Plaça aparcament
- Moblat
- Sense aire acondicionat
- A prop de transport públic
Galeria
Ubicació
Los Alvarados - Fuente los Berros - Bandama Carretera del Centro Monte Lentiscal