Comentari guardat!
Només ho veuràs tú
Comment saved!
Afegeix la teva valoració i/o un comentari per aquest anunci. Només el veuràs tu

Xalet amb aparcament piscina a Pedanías Oeste Aspe

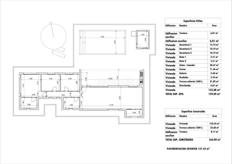
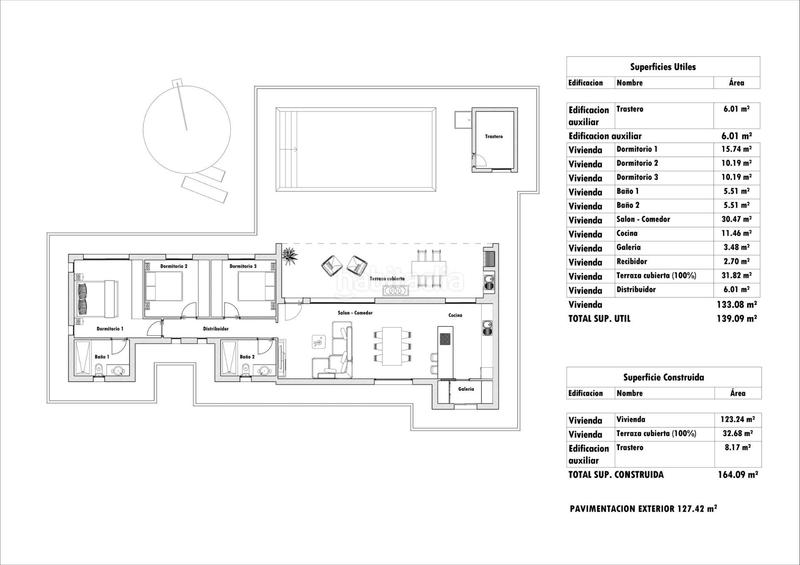
  • 164 m2
  • 3 hab.
  • 2 banys
  • 2.460 €/m2

Villas de obra nueva situadas en término de Aspe.

Villas de obra nueva situadas en término de Aspe.

Villas de obra nueva con varios modelos a elegir entre dormitorios, de una o 2 plantas y construidas con losa o con estructura: dependiendo del modelo y la parcela elegida, se calculará el precio exacto.

Todas las villas se construyen en parcelas rústicas de más de 10.000 m2 de los cuales se vallarán unos 2.500 m2.

Las villas disponen de cocina americana con el salón, armarios empotrados, piscina privada, porche, trastero y plaza de parking exterior.

Hay varias parcelas a elegir, para el cálculo del precio se ha considerado una parcela con un precio de 77.500 eur (si se elige otra parcela, se pagará o abonará la diferencia según el precio de la misma).

Realizada en régimen de auto promoción, entrega en unos 12 meses desde la concesión de la licencia.

Si busca un entorno tranquilo, cerca de pueblos típicos españoles alejados de la masificación turística, rodeado de montañas, con una amplísima parcela y a unos 30 minutos del mar, esta es su casa.

Aspe es un típico pueblo español con todos los servicios para el día a día, rodeado de montañas y con varios parajes naturales en las cercanías donde se pueden hacer rutas de senderismo o mountain bike.

Situado a 25 km de la playa, a 9 km de Elche y a unos 20 km del aeropuerto de Alicante.

última modificació

Distribució

  • 3 habitacions
  • Superfície 164 m2
  • Terrassa 32 m2
  • Terreny 13172 m2
  • 2 banys
  • Traster

Característiques generals

  • Piscina pròpia
  • Plaça aparcament
  • Any construcció 2025
  • Certificat energètic :
    Consumo:
    G
    999 kW h m2 / año
    Emisiones:
    G
    999 kg CO2 m2 / año
Anunci: 42933000007638

Ubicació

Pedanías Oeste

Navega pel mapa fent clic a sobre
403.500 € Preu de l´anunci
988 €/m2€/m2 población
2.460 €/m2€/m2 de l´anunci
Quant t´agradaria pagar?
Veure evolució €/m2 a Aspe (Pedanías Oeste)
T´avisem quan tinguem un anunci com aquest? Crea la teva alerta i nosaltres t´avisarem per correu electrònic quan hi hagin nous anuncis o siguin modificats
 

Contactar Inmobiliaria Maymar

Referència de l´anunci habitaclia/N8933:

Veuràs el telèfon després d´enviar el contacte a l´anunciant perquè et pugui atendre.
Veuràs el telèfon després de contactar
Enviant…