Comentari guardat!
Només ho veuràs tú
Comment saved!
Afegeix la teva valoració i/o un comentari per aquest anunci. Només el veuràs tu

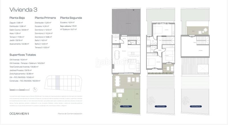
Xalet 143030m2 a Santangelo Benalmádena

Calle Ágave

  • des de 143.030 m2
  • 3 hab.
  • 3 banys
  • 3 €/m2
OCEAN VIEW Homes 2
Pertany a la promoció

OCEAN VIEW Homes 2

Esta promoción tiene 7 tipos de habitatges Veure promoció

Ocean View Fase 2 , 8 exclusivos adosados con vistas al mar en Benalmádena

Promoción exclusiva de 8 casas adosadas con vistas al mar

Descubre esta nueva promoción en Santangelo, una de las zonas más demandadas de Benalmádena, conocida por su tranquilidad, excelente ubicación y espectaculares vistas al mar.

Se trata de un conjunto de 8 viviendas adosadas de diseño moderno, pensadas para ofrecer confort, amplitud y luminosidad en cada uno de sus espacios.

Cada vivienda cuenta con:

?? 3 dormitorios
?? 2 baños completos + 1 aseo
?? Jardín privado
?? Terraza
?? Espectacular solárium con vistas panorámicas al mar
?? 2 plazas de aparcamiento incluidas

Un entorno privilegiado, ideal para familias o como segunda residencia, con acceso rápido a la autovía, colegios, comercios, y a solo minutos de la playa.

?? Desde 455.000 €

Una oportunidad única de vivir en Benalmádena con todas las comodidades y el encanto de la Costa del Sol.

última modificació

Distribució

  • 3 habitacions
  • Superfície 143030 m2
  • 3 banys
  • Cuina Tipus Office: No

Característiques generals

  • Sense plaça aparcament
  • Sense aire acondicionat
  • Certificat energètic :
    Consumo:
    G
    999 kW h m2 / año
    Emisiones:
    G
    999 kg CO2 m2 / año
Anunci: 22894000003377

Ubicació

Santangelo Calle Ágave

Navega pel mapa fent clic a sobre
455.000 € Preu de l´anunci
2.984 €/m2€/m2 distrito
3 €/m2€/m2 de l´anunci
100% més econòmic que la mitja*
Veure evolució €/m2 a Benalmádena (Santangelo)
T´avisem quan tinguem un anunci com aquest? Crea la teva alerta i nosaltres t´avisarem per correu electrònic quan hi hagin nous anuncis o siguin modificats
 

Pertany a la promoció OCEAN VIEW Homes 2

Benalmádena - Calle Ágave
Promoción OCEAN VIEW Homes 2 Benalmádena - Calle Ágave des de 455.000 € Veure promoció
Altres tipus d´habitatge d´aquesta promoció

Contactar CENTURY 21 TURQUESA

Referència de l´anunci habitaclia/Chalet Adosado 2:

Veuràs el telèfon després d´enviar el contacte a l´anunciant perquè et pugui atendre.
Veuràs el telèfon després de contactar
Enviant…