Favorito y comentario
Lloguer local comercial a La Font d´en Fargues Barcelona
Característiques principals
- 1.514 m2
- 7,93 €/m2
Informació detallada
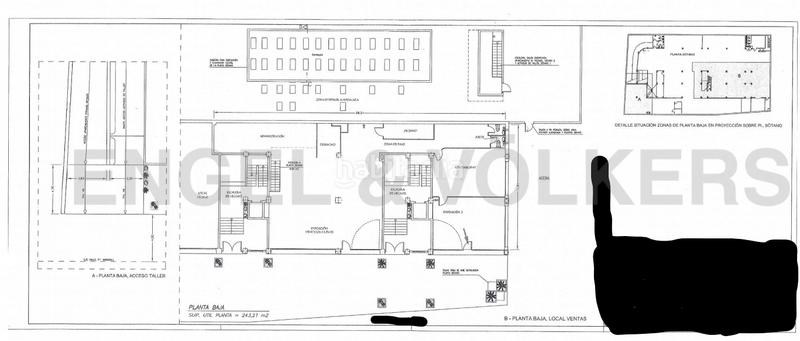
Magnifico local esquinero de 1.514 m2 en el mejor tramo de Passeig Maragall
Magnifico local esquinero de 1.514m2 en el mejor tramo de Passeig Maragall. El local está todo lleno de cristaleras a pie de calle que le aportan mucha luz y visibilidad al tráfico peatonal y también al tráfico rodado. La fachada es de unos 25 metros lineales. Tiene rampa para entrada de vehículos, que se podría utilizar también como parking. El local se divide en dos plantas. Planta baja de 243 m2 y planta sótano de 1.271 m2. Ideal para gimnasios y supermercados, también para otras actividades que precisen muchos metros de superficie. Está en perfecto estado y con todas las comodidades, aire acondicionado y bomba de calor, iluminación, baños, aseos, sistema de alarma, contraincendios, etc. Está para entrar, pero entendemos que el futuro operador tendrá que hacer una remodelación a sus necesidades y actividad.
Los gastos de comunidad e IBI correrán a cuenta del arrendatario. La propiedad pedirá garantías adicionales según el candidato. Honorarios de EV 15% de una anualidad.
El distrito de Horta-Guinardó es el tercero en extensión de Barcelona, solamente superado por los de Sants-Montjuïc y Sarriá-San Gervasio. Con una superficie de 1.192 ha, representa el 11,9% de la extensión total del municipio. Su población es de 169.920 habitantes.
Descripcio en català
Magnífic local cantoner de 1.514 m² al millor tram de Passeig Maragall. El local té tot ple vidrier a peu de carrer que li aporten molta llum i visibilitat al trànsit de vianants i també al trànsit rodat. La façana és de 25 metres lineals. Té rampa per a entrada de vehicles, que es podria utilitzar també com a pàrquing. El local es divideix en dues plantes. Planta baixa de 243 m² i la planta soterrània de 1.271 m². Ideal per a gimnasos i supermercats, també per a altres activitats que necessitin molts metres de superfície. Està en perfecte estat i amb totes les comoditats, aire condicionat i bomba de calor, il·luminació, banys, lavabos, sistema d'alarma, contraincendis, etc. Està per entrar-hi, però entenem que el futur operador haurà de fer una remodelació a les seves necessitats i activitat.
Les despeses de comunitat i IBI aniran a compte de l'arrendatari. La propietat demanarà garanties addicionals segons el candidat. Honoraris de l'EV 15% d'una anualitat.
El districte d'Horta-Guinardó és el tercer en extensió de Barcelona, ??només superat pels de Sants-Montjuïc i Sarrià-Sant Gervasi. Amb una superfície de 1.192 ha representa l'11,9% de l'extensió total del municipi. La seva població és de 169.920 habitants.
Description in english
Magnificent corner premises of 1,514 sqm in the best section of Passeig Maragall. The place has everything full of windows at street level that provide a lot of light and visibility to pedestrian traffic and also to road traffic. The facade is about 25 linear meters. It has a ramp for vehicle entry, which could also be used as a parking lot. The premises are divided into two floors. Ground floor of 243 sqm and basement of 1,271 sqm. Ideal for gyms and supermarkets, also for other activities that require many meters of surface. It is in perfect condition and with all the comforts, air conditioning and heat pump, lighting, bathrooms, toilets, alarm system, fire protection, etc. It is to enter, but we understand that the future operator will have to make a remodeling to their needs and activity.
Community expenses and IBI will be borne by the tenant. The property will request additional guarantees according to the candidate. EV fees 15% of an annuity.
The Horta-Guinardó district is the third largest in Barcelona, ??only surpassed by Sants-Montjuïc and Sarriá-San Gervasio. With an area of ??1,192 ha, it represents 11.9% of the total area of ??the municipality. Its population is 169,920 inhabitants.
última modificació
Distribució
- Superfície 1514 m2
Característiques generals
- Moblat
- Aire Acondicionat
Galeria
Ubicació
La Font d´en Fargues
