Comentari guardat!
Només ho veuràs tú
Comment saved!
Afegeix la teva valoració i/o un comentari per aquest anunci. Només el veuràs tu

Lloguer local comercial a L´Antiga Esquerra de l´Eixample Barcelona

  • 500 m2
  • 11,90 €/m2

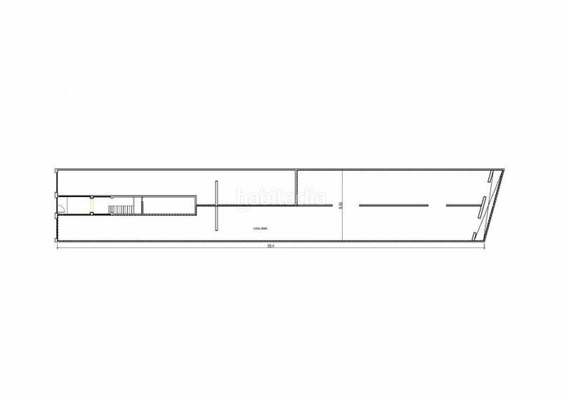
Local comercial de 500 m2 en una sola planta

Local comercial de 500 m2 en una sola planta en forma de "U" con posibilidad de SALIDA DE HUMOS situado en zona comercial transitada cerca de Rambla Catalunya y Paseo de Gracia, de afluyentes hoteles y muy bien comunicado con el transporte público. Ideal para cualquier tipo de negocio.

Demanar més dades a l´anunciant

última modificació

Distribució

  • Superfície 500 m2

Característiques generals

  • Sense moblar
  • Sense aire acondicionat
  • Certificat energètic :
    Consumo:
    G
    999 kW h m2 / año
    Emisiones:
    G
    999 kg CO2 m2 / año
Anunci: 2328002583497

Ubicació

L´Antiga Esquerra de l´Eixample

Navega pel mapa fent clic a sobre
T´avisem quan tinguem un anunci com aquest? Crea la teva alerta i nosaltres t´avisarem per correu electrònic quan hi hagin nous anuncis o siguin modificats
 

Contactar FINQUES MONICO

Referència de l´anunci habitaclia/FM25542:

Veuràs el telèfon després d´enviar el contacte a l´anunciant perquè et pugui atendre.
Veuràs el telèfon després de contactar
Enviant…