Favorito y comentario
Lloguer local comercial a Barrio de Zaidín Granada
Característiques principals
- 292 m2
- 1 bany
- 6,16 €/m2
Informació detallada
Solvia Inmobiliaria Locales Granada
Local comercial situado en Granada.
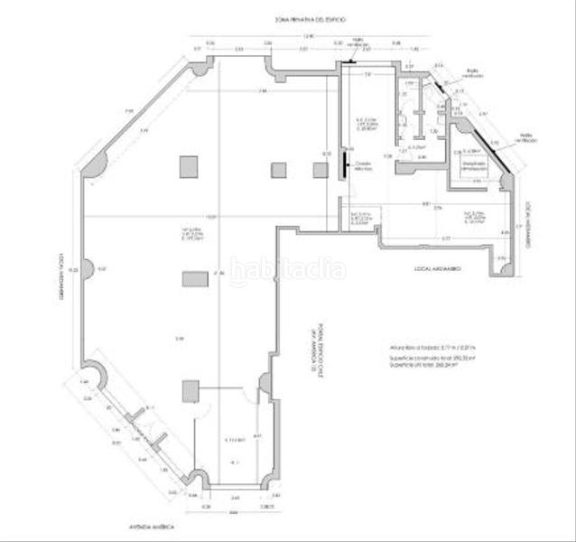
Se trata de un local comercial con una superficie de 292 m², situado en la planta baja de un edificio construido en 1978 y con acceso directo e independiente desde la calle.
El espacio comercial está comunicado mediante la parada de TRAM próxima, autobuses con las líneas U3 y U3-FR y a través del acceso GR-30.
La zona está dotada de equipamiento variado, colegio, centro de salud, restaurantes, zona deportiva, parque, etc.
Con nuestros servicios podrá encontrar el local que necesita. Empiece ahora mismo pidiendo más información. Un responsable cercano a usted le atenderá personalmente.
- El inmueble es propiedad de un tercero, y está arrendado, publicándose por el arrendatario para ceder el local en régimen de subarrendamiento. No es posible facilitar el contrato de arrendamiento matriz y requiere de la autorización del propietario para poder subarrendar. El precio de venta de este Inmueble se ha determinado en base a las anteriores circunstancias, que han supuesto un menor valor del mismo, y que deberán ser expresamente aceptadas por el adquirente en la formalización de la transmisión del Inmueble. Se recomienda que el comprador obtenga asesoramiento profesional y legal antes de adoptar la decisión de compra.
última modificació
Distribució
- Superfície 292 m2
Característiques generals
Galeria
Ubicació
Barrio de Zaidín Av de América
