Comentari guardat!
Només ho veuràs tú
Comment saved!
Afegeix la teva valoració i/o un comentari per aquest anunci. Només el veuràs tu

Lloguer local comercial a Centro - Areal Vigo

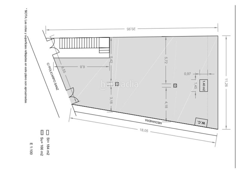
  • 180 m2
  • 1 bany
  • 16,67 €/m2

Local Comercial en Alquiler - Oportunidad Única en el Centro

Descubre este espectacular local comercial en alquiler, ubicado en una de las zonas más transitadas de la ciudad. Con una superficie total de 180 m², este espacio ofrece una altura interior impresionante de 4,65 metros, que se puede ampliar hasta 5 metros, brindando una sensación de amplitud y luminosidad inigualable. Construido en 1881 y completamente remodelado en 2023, el local cuenta con muros de piedra labrada de perpiaño en sus cuatro fachadas, lo que le otorga un carácter único y atractivo.

La reforma reciente incluye preinstalación eléctrica y paredes de tabiquería de pladur intercambiables, permitiendo adaptar el espacio a las necesidades específicas de tu negocio. En la parte trasera, encontrarás cuatro estancias que pueden utilizarse como oficinas o áreas de almacenamiento. Además, hay preinstalación para un cuarto de baño, lo que añade comodidad al local. Posibilidad de poder instalar salida de humos.

Con un contrato de alquiler flexible de 5 o 10 años prorrogables y una renta mensual de 3.000 € (ajustada al IPC), este local es una excelente opción para emprendedores y empresarios que buscan establecerse en una ubicación privilegiada. El pago se realiza dentro de los primeros 5 días de cada mes y se ofrece un plazo de carencia de hasta dos meses para realizar las obras de acondicionamiento necesarias.

No pierdas la oportunidad de hacer crecer tu negocio en este local a pie de calle, con un escaparate de 8 metros lineales que garantiza visibilidad y atracción para tus clientes. ¡Contacta ahora y asegura tu futuro empresarial en este espacio excepcional!

última modificació

Distribució

  • Superfície 180 m2

Característiques generals

  • Sense moblar
  • Sense aire acondicionat
  • Certificat energètic :
    Exempt
Anunci: 33856000004668

Ubicació

Centro - Areal Rúa Policarpo Sanz

Navega pel mapa fent clic a sobre
T´avisem quan tinguem un anunci com aquest? Crea la teva alerta i nosaltres t´avisarem per correu electrònic quan hi hagin nous anuncis o siguin modificats
 

Contactar ALTERNATIVA FINANCIERA

Referència de l´anunci habitaclia/VG-516:

Veuràs el telèfon després d´enviar el contacte a l´anunciant perquè et pugui atendre.
Veuràs el telèfon després de contactar
Enviant…