Comentari guardat!
Només ho veuràs tú
Comment saved!
Afegeix la teva valoració i/o un comentari per aquest anunci. Només el veuràs tu

Lloguer nau industrial a Castellbisbal

ACUSTICA

  • 4.604 m2
  • 5,65 €/m2

AMAT IMMOBILIARIS presenta nave industrial (tipo C) en alquiler, situada en el polígono industrial Santa Rita de Castellbisbal, con fácil acceso desde autopista AP7, que garantiza la rápida conectividad con Barcelona y cualquier población del Baix Llobregat.

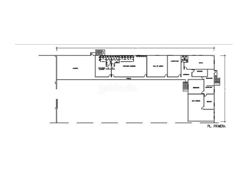
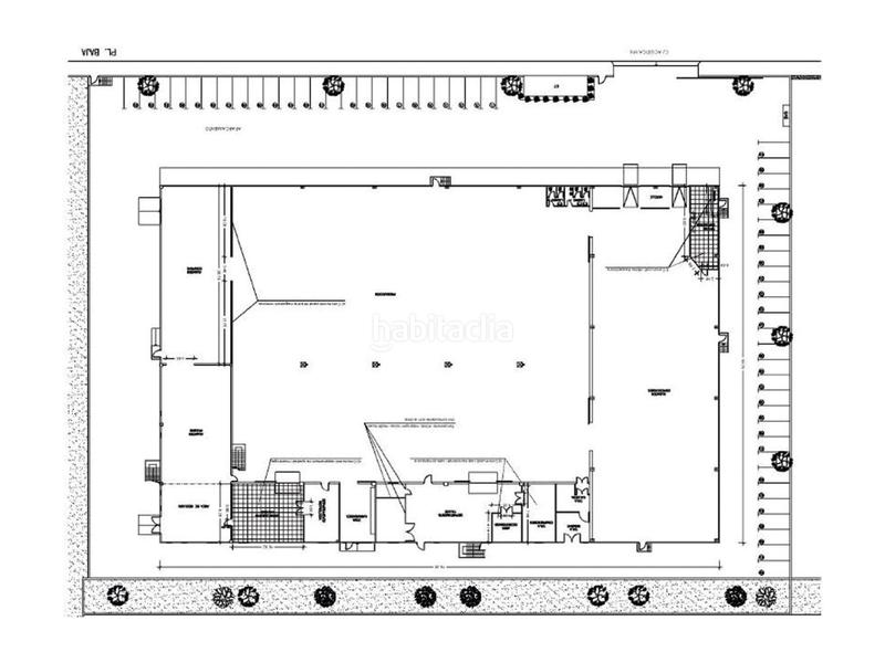
En una parcela de 10.627 m², la nave cuenta con un total de 4.604 m² repartidos en Planta baja de 3.944 m² más Altillo de 660 m².
La planta baja es mayoritariamente una zona diáfana y cuenta con 2.170 m² con una altura de 6 m, 884 m² con altura de 8 m (860  m² pertenecen a zona diáfana y 24  m² a zona destinada a oficinas) y 230 m² con altura de 3 m (bajo el altillo).

La propiedad está equipada con dos muelles de carga, una entrada lateral para descargar, estación transformadora, sistema contra incendios, varias salas de juntas y despachos con climatización, 2 vestuarios, 5 baños y comedor. Además, dentro de la misma parcela, dispone de 48 cómodas plazas de aparcamiento exterior.

última modificació

Distribució

  • Superfície 4604 m2

Característiques generals

  • Any construcció 1994
Anunci: 531205772346

Ubicació

ACUSTICA

Navega pel mapa fent clic a sobre
T´avisem quan tinguem un anunci com aquest? Crea la teva alerta i nosaltres t´avisarem per correu electrònic quan hi hagin nous anuncis o siguin modificats
 

Contactar Amat Immobiliaris

Referència de l´anunci habitaclia/32848:

Veuràs el telèfon després d´enviar el contacte a l´anunciant perquè et pugui atendre.
Veuràs el telèfon després de contactar
Enviant…