Comentari guardat!
Només ho veuràs tú
Comment saved!
Afegeix la teva valoració i/o un comentari per aquest anunci. Només el veuràs tu

Lloguer nau industrial a calle río zújar 25 a Los Olivos-Los Ángeles Getafe

  • 3.427 m2
  • 6,00 €/m2

Módulos logísticos en alquiler en en CLA de Getafe

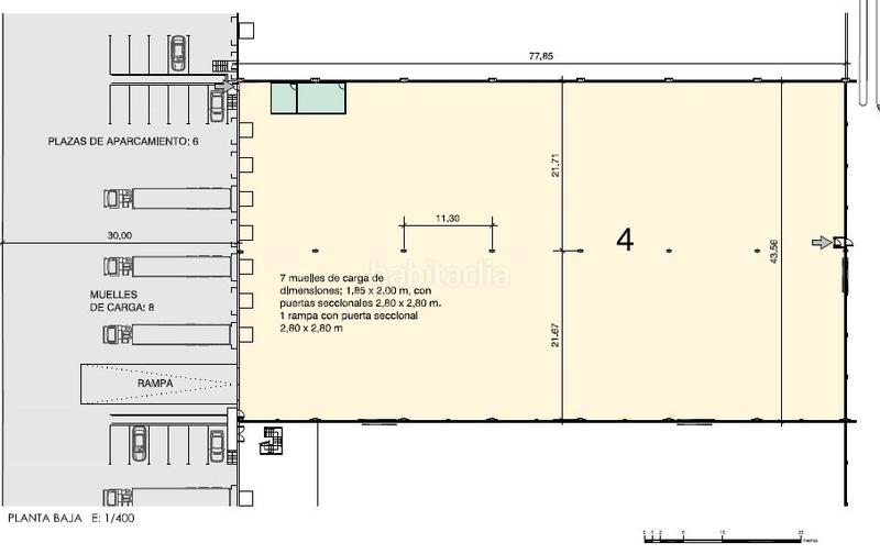
Plataforma logística con una superficie total de 32.000 m² construidos y con flexibilidad de superficies desde 3.000 m² situada en el C. L. A. de Getafe. Disponibilidad de 1 módulo de 3.427 m². Características: estructura de hormigón, cerramiento de chapa, altura libre de 10 m. , muelles de carga, cubierta plana tipo sándwich, solera de hormigón, PCI: BIE's, rociadores, extintores; recinto vallado, alarma, patio delantero y amplia zona de maniobras.

Demanar més dades a l´anunciant

última modificació

Distribució

  • Superfície 3427 m2

Característiques generals

  • Any construcció 1996
Anunci: 40677000000370

Ubicació

Los Olivos-Los Ángeles Calle Río Zújar 25

Navega pel mapa fent clic a sobre
T´avisem quan tinguem un anunci com aquest? Crea la teva alerta i nosaltres t´avisarem per correu electrònic quan hi hagin nous anuncis o siguin modificats
 

Contactar CBRE REAL ESTATE

Referència de l´anunci habitaclia/Prologis Park Getafe:

Veuràs el telèfon després d´enviar el contacte a l´anunciant perquè et pugui atendre.
Veuràs el telèfon després de contactar
Enviant…