Comentari guardat!
Només ho veuràs tú
Comment saved!
Afegeix la teva valoració i/o un comentari per aquest anunci. Només el veuràs tu

Lloguer oficina amb calefacció a Poblenou Barcelona

  • 1.482 m2
  • 24,00 €/m2

Moderna Oficina en el 22

Referencia 178d013

Ubicada en un moderno edificio de oficinas distribuido en planta baja más 7 plantas sobre rasante y 2 bajo rasante destinadas a garaje.

El edificio se escalona en varias alturas creando diferentes terrazas. Dispondrá de una zona ajardinada para uso privado de los usuarios del edificio. Situado en el distrito del 22@, próximo al Centro Comercial Glories y el mar, cuenta con innumerables servicios y una buena comunicación por transporte público y privado.

LA OFICINA:
¦ Posibilidad de entrega oficina Plug&Play.
¦ Ratio de ocupación 1:6.
¦ Abundante luz natural.
¦ Luminarias suspendidas LED.
¦ Pavimento técnico cerámico.
¦ Aseos privativos dentro de la oficina.
¦ Posibilidad de instalar office personalizado.
¦ Climatización frío - calor VRV.
¦ Plazas de garaje para coches a 130 €/mes, no incluidas en la renta.
¦ Plazas de garaje para motos a 50 €/mes, no incluidas en la renta.
¦ Plazas de garaje para bicicletas a 15 €/mes, no incluidas en la renta.
¦ Gastos de comunidad, 8.151 €/mes (5,5 €/m²/mes) + provisión consumo Districlima privativo
¦ Alquiler 35.568 €/mes (24 €/m²/mes)

EL EDIFICIO:
¦ Fachada semi acristalada.
¦ Lobby representativo.
¦ Terrazas comunitaria ubicada en planta 6ª.
¦ Espacios comunitarios en planta baja.
¦ Terrazas privadas.
¦ Vestuarios y duchas.
¦ Núcleo de 3 ascensores y 2 escaleras.
¦ Aparcamientos en planta sótano.
¦ Aparcamiento para bicicletas y lockers para patinetes.
¦ Certificación LEED.
¦ Sistema de seguridad.

COMUNICACIONES:
¦ BUS: 6, 136, 192, H14, V23, V25
¦ METRO: L4 Llacuna / L1 Glories
¦ TRAM: T4, T5, T6 Glories / T4 Ca l'Aranyo
¦ CARRETERAS: Diagonal, Meridiana, Gran Via, B-10 Ronda Litoral

Para visitas o inmuebles similares:
-t.
-
[IW]

última modificació

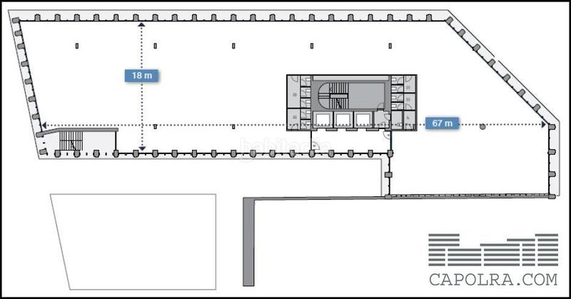
Distribució

  • Superfície 1482 m2

Característiques generals

  • Calefacció
  • Aire Acondicionat
  • Any construcció 2020
  • Certificat energètic :
    Consumo:
    G
    999 kW h m2 / año
    Emisiones:
    G
    999 kg CO2 m2 / año

Equipament comunitari

  • Ascensor
Anunci: 10944000009756

Ubicació

Poblenou pallars

Navega pel mapa fent clic a sobre
T´avisem quan tinguem un anunci com aquest? Crea la teva alerta i nosaltres t´avisarem per correu electrònic quan hi hagin nous anuncis o siguin modificats
 

Contactar CAPOLRA

Referència de l´anunci habitaclia/178d013:

Veuràs el telèfon després d´enviar el contacte a l´anunciant perquè et pugui atendre.
Veuràs el telèfon després de contactar
Enviant…