Visita virtual
Comentari guardat!
Només ho veuràs tú
Comment saved!
Afegeix la teva valoració i/o un comentari per aquest anunci. Només el veuràs tu
1.280 € Avisa´m si baixa
ha baixat 10 €

Lloguer pis a Opañel Madrid

  • 83 m2
  • 3 hab.
  • 1 bany
  • 15,42 €/m2

¡ALTA DE SUMINISTROS GRATIS!


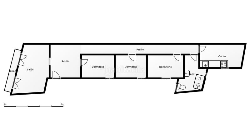
Excelente vivienda de tres dormitorios y un baño. Se encuentra en la 3ª planta de un edificio residencial. No dispone de ascensor. Situado en OPANEL en el distrito de Carabanchel.


La vivienda se distribuye en tres dormitorios y , salón-comedor con acceso a terraza, cocina independiente y un baño.. Cuenta con cocina amueblada y equipada con muebles altos y bajos, vitrocerámica, horno y campana extractora.


Se encuentra ubicado en Opañel, Carabanchel (Suroeste de Madrid). Cuenta con fácil acceso a través de las principales carreteras y buenas comunicaciones por transporte público.

La parada de metro más cercana es Urgel y se encuentra a menos de 10 minutos andando. La parada de autobús más cercana es General Ricardos-Comandante Fontanes y se encuentra a menos de 5 minutos andando. La parada de taxi más cercana se encuentra a menos de 20 minutos andando.

En su entorno existen viviendas plurifamiliares de similares características. La zona cuenta con todo tipo de servicios básicos, existen 5 farmacias a menos de 300 metros, el colegio más cercano se encuentra a 290 metros. Además, a menos de 500 metros también puedes encontrar 5 supermercados, un banco.

La zona cuenta con una amplia oferta de entretenimiento con 10 parques, bares, restaurantes y comercios a pocos minutos de la vivienda.

En cuanto al transporte privado, la zona dispone de parkings privados y aparcamiento en la calle. La vivienda tiene un fácil acceso por carretera y está bien comunicado a través de la Calle 30, Calle del General Ricardos y la Calle de Antonio Leyva.
Requisitos:
- 1 mes de fianza
- Seguro del hogar a la firma del contrato.
- Antigüedad laboral ininterrumpida superior a un año.
- No aparecer en ningún fichero de morosidad.
- Disponer de una ratio de solvencia* de entre un 30% y 35% dependiendo de la zona.
*Solo se tendrán en cuenta ingresos demostrables para acreditar el ratio

última modificació

Distribució

  • 3 habitacions
  • Superfície 83 m2
  • 1 bany
  • Cuina Tipus Office: No

Característiques generals

  • Sense plaça aparcament
  • Sense aire acondicionat
  • Any construcció 1940
  • Certificat energètic :
    Consumo:
    E
    137 kW h m2 / año
    Emisiones:
    E
    52 kg CO2 m2 / año

Equipament comunitari

  • Sense ascensor
Anunci: 38251000005855

Ubicació

Opañel

Navega pel mapa fent clic a sobre
1.280 € Preu de l´anunci
20,40 €/m2€/m2 distrito
15,42 €/m2€/m2 de l´anunci
24% més econòmic que la mitja*
Quant t´agradaria pagar?
Veure evolució €/m2 a Madrid (Carabanchel)
T´avisem quan tinguem un anunci com aquest? Crea la teva alerta i nosaltres t´avisarem per correu electrònic quan hi hagin nous anuncis o siguin modificats
 

Contactar Alquila Tu Hogar

Referència de l´anunci habitaclia/2001/20010001/1858:

Veuràs el telèfon després d´enviar el contacte a l´anunciant perquè et pugui atendre.
Veuràs el telèfon després de contactar
Enviant…