Comentari guardat!
Només ho veuràs tú
Comment saved!
Afegeix la teva valoració i/o un comentari per aquest anunci. Només el veuràs tu

Casa adossada a Daganzo de Arriba

  • 150 m2
  • 4 hab.
  • 3 banys
  • 2.433 €/m2

CHALET ADOSADO DE 2 PLANTAS - DAGANZO - AMPLIABLE

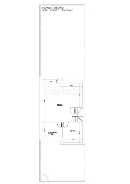
Chalet ADOSADO personalizable: La vivienda será configurable y diseñada en función de los gustos, necesidades y preferencias de cada cliente, el proceso de diseño se realiza a medida y de la mano del cliente que tendrá la oportunidad de dar su propio toque y personalizar la vivienda, para que la sienta como suya desde el primer día, sin necesidad de adaptaciones posteriores, cada chalet es único y con personalidad propia- Autopromoción, disponemos de múltiples planos para utilizar como base en el diseño de su vivienda ideal, superficie total construida 150 m2, 2 plantas (baja y primera), opción añadida se puede añadir planta sótano 75 m2 y planta Atico ; modelo con cubierta tipo inclinado de teja ó plana, también se pueden realizar otras configuraciones de mayor tamaño por planta , ¿que incluye nuestro precio? : compra de parcela, estudio geotécnico del terreno, proyecto, control y supervisión por dirección facultativa, gestión y pago de licencias y construcción llave en mano y con vivienda totalmente terminada, con memoria de calidades con materiales de vanguardia, elegantes y modernos a elegir entre una amplia variedad, amueblamiento de cocina, vallado de parcela, pavimentado delantero, etc.. . gestión a medida y personalizada de cada diseño de distribución, fachada y planos, Se realizan gestiones para conseguir el préstamo autopromotor ó comparativo con sus entidades financieras habituales, solicitud y contratación de suministros (luz, agua, gas) y tramitamos la solicitud de licencia de primera ocupación /habitabilidad…( precios sin Incluir IVA)

última modificació

Distribució

  • 4 habitacions
  • Superfície 150 m2
  • 3 banys
  • Cuina Tipus Office: No

Característiques generals

  • Sense plaça aparcament
  • Sense aire acondicionat
  • Any construcció 2024
  • Certificat energètic :
    Consumo:
    G
    999 kW h m2 / año
    Emisiones:
    G
    999 kg CO2 m2 / año
Anunci: 28622000000786

Ubicació

Navega pel mapa fent clic a sobre
365.000 € Preu de l´anunci
3.517 €/m2€/m2 comarca
2.433 €/m2€/m2 de l´anunci
31% més econòmic que la mitja*
Quant t´agradaria pagar?
Veure evolució €/m2 a Daganzo de Arriba
T´avisem quan tinguem un anunci com aquest? Crea la teva alerta i nosaltres t´avisarem per correu electrònic quan hi hagin nous anuncis o siguin modificats
 

Contactar KH LA VIVIENDA A MEDIDA

Referència de l´anunci habitaclia/18:

Veuràs el telèfon després d´enviar el contacte a l´anunciant perquè et pugui atendre.
Veuràs el telèfon després de contactar
Enviant…