Comentari guardat!
Només ho veuràs tú
Comment saved!
Afegeix la teva valoració i/o un comentari per aquest anunci. Només el veuràs tu

Casa adossada amb aparcament a Chullera Manilva

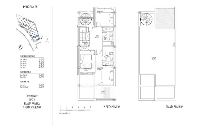
  • 126 m2
  • 3 hab.
  • 2 banys
  • 4.722 €/m2

RESIDENCIAL DE OBRA NUEVA EN LAS ROCAS EN MANILVA

Residencial de obra nueva de 16 adosados y villas pareadas situado en Las Rocas en Manilva, en la Costa del Sol.

En el residencial disfrutará de las mejores y más espectaculares vistas al mar, llegando hasta Gibraltar y la costa marroquí con la mejor orientación. El entorno ideal para disfrutar del auténtico estilo de vida mediterráneo.

Viviendas modernas de 3 dormitorios, 2 baños, cocina americana con amplio salón, armarios empotrados, terrazas, solarium, jardín privado y sótano con garaje.

Conjunto residencial totalmente cerrado y vallado. Las zonas comunes cuentan con iluminación LED para una máxima eficiencia energética y rampas de acceso.
Plaza de aparcamiento privada para dos coches.
Podrá disfrutar de zonas comunes: la gran piscina incorporará tecnología moderna de última generación. También habrá pista de pádel, zona infantil.

Residencial situado en la ubicación perfecta entre Marbella y Sotogrande, en el corazón de la Costa del Sol y muy cerca de la playa. De fácil acceso con excelentes comunicaciones por carretera que conectan directamente con la N340 en el km150. Situado a tan sólo 1 hora del aeropuerto internacional de Málaga y a 25 minutos del aeropuerto de Gibraltar.

Rodeado de zonas verdes y de los mejores campos de golf de Europa. A tan solo 5 minutos se encuentra La Reserva Club en Sotogrande, una gran zona de ocio que incluye Golf, Hípica y resort con instalaciones de restauración, playa de arena blanca y laguna para actividades deportivas.

última modificació

Distribució

  • 3 habitacions
  • Superfície 126 m2
  • Terreny 48 m2
  • 2 banys

Característiques generals

  • Plaça aparcament
  • Certificat energètic :
    Consumo:
    G
    999 kW h m2 / año
    Emisiones:
    G
    999 kg CO2 m2 / año
Anunci: 39175000037009

Ubicació

Chullera

Navega pel mapa fent clic a sobre
595.000 € Preu de l´anunci
3.601 €/m2€/m2 población
4.722 €/m2€/m2 de l´anunci
Veure evolució €/m2 a Manilva
T´avisem quan tinguem un anunci com aquest? Crea la teva alerta i nosaltres t´avisarem per correu electrònic quan hi hagin nous anuncis o siguin modificats
 

Contactar MANSIONS.ES

Referència de l´anunci habitaclia/MRG72057X:

Veuràs el telèfon després d´enviar el contacte a l´anunciant perquè et pugui atendre.
Veuràs el telèfon després de contactar
Enviant…