Favorito y comentario
Casa adossada amb calefacció aparcament a Nucli Urbà Esparreguera
Característiques principals
- 520 m2
- 6 hab.
- 4 banys
- 731 €/m2
Informació detallada
Casa con posibilidad de hacer TRES PISOS CON ENTRADAS INDEPENDIENTES.
Vivienda entre medianeras en el centro de Esparreguera.
Muy soleada, con diversas posibilidades.
Parcela de 367m2 con acceso desde 2 calles.
Superficie total: 520m2 (460m2 de vivienda + 60 de garaje) y patio de 149m2 aprox.
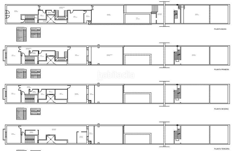
Vivienda distribuida en diferentes plantas:
- Pl. baja: 158m2
- Pl. primera: 126m2
- Pl. segunda: 88m2
- Pl. tercera: 88m2
Garaje: 60m2 capacidad para varios vehículos
Terraza parte superior garaje: 60m2
Estado de conservación Planta baja + planta primera en buen estado. Planta segunda a reformar. Planta tercera es una buhardilla.
Calefacción en pl. primera y segunda
Distribución y superficies útiles:
- Vivienda compuesta de planta baja + planta primera:
Pl. baja: Entrada + 2 habitaciones (4m2 y 12m2) + comedor de 35m2 + cocina con salida a patio muy luminosa de 14m2 + 2 baños + escalera interior + patio interior en vivienda 8m2 + patio exterior 149m2 muy luminoso +
Edificio independiente : garaje de 60m2 para varios vehículos con acceso a calle posterior, terraza en parte superior de 60m2
Pl. primera: 67m2 útiles: 2 habitaciones (15m2 + 20m2) + 1 baño de 7m2 + 2 trasteros + pasillo + escalera interior + terraza 38m2
- Pisos planta 2º y 3ª: Escalera independiente para acceso a pisos superiores des de la calle
- Pl. segunda: 67m2 útiles: Actualmente como piso independiente a reformar: Comedor + cocina + 2 habitaciones + 1 baño + tratero + pasillo + balcón 6m2
- Pl. tercera: 67m2 útiles: Boardilla bajo cubierta, en estado de origen , distribuido en diferentes estancias + balcón 6m2
Posibilidad de comprar sin garaje, y menos patio. (serà necesario segregar)
Este documento tiene una finalidad meramente informativa, y no reviste carácter contractual, si bien los datos que se facilitan se dan de buena fe y se consideran correctos, salvo error u omisión. Estos datos pueden sufrir variaciones debido a cambios ajenos a la empresa. (Impuestos no incluidos en los precios)
última modificació
Distribució
- 6 habitacions
- Superfície 520 m2
- Terreny 367 m2
- 4 banys
- Cuina Tipus Office: No
- Traster
Característiques generals
- Calefacció
- Plaça aparcament
- Sense aire acondicionat
Galeria
Ubicació
Nucli Urbà
