Comentari guardat!
Només ho veuràs tú
Comment saved!
Afegeix la teva valoració i/o un comentari per aquest anunci. Només el veuràs tu

Casa aparellada amb piscina a Jardines de Alhaurín-Huerta Alta-Fuensanguínea Alhaurín de la Torre

  • 241 m2
  • 3 hab.
  • 4 banys
  • 2.884 €/m2

EXCLUSIVO CHALET PAREADO, CON PISCINA, EN ALHAURÍN DE LA TORRE.
Descubre este exclusivo chalet pareado de obra nueva en la zona de Huerta Alta, pensado para que tu familia disfrute de la tranquilidad, la comodidad y todos los servicios a un paso: supermercados, comercios, restauración, colegios, institutos, farmacias, clínicas, parques, zonas de ocio, centros deportivos y mucho más.

La vivienda se entrega terminada y con la piscina.

Prevista la finalización para diciembre de 2025.
Calidades:
Aislamiento doble en paredes base de espuma de poliuretano y lana de roca y cubierta a base de espuma de poliuretano.
Carpintería exterior en aluminio color gris antracita con persianas autoblocantes motorizadas y doble acristalamiento.
Puerta de seguridad en entrada y puertas interiores de alta calidad.
Solería porcelánica.
Preinstalación de climatización por conductos.
Previsión de instalación fotovoltaica.

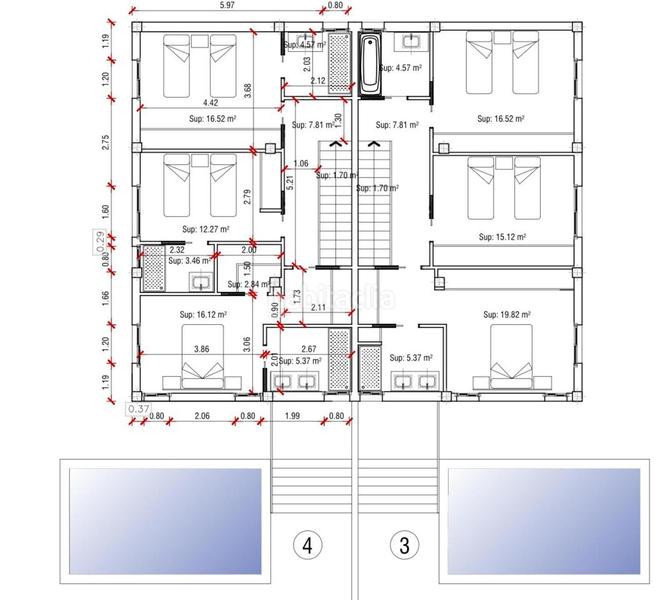
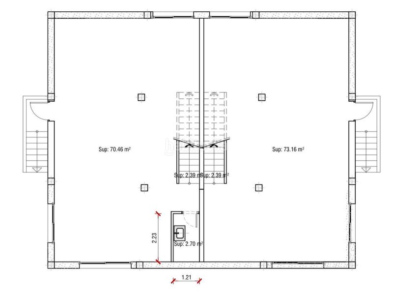
Distribución y superficie:
Construida sobre una parcela de 396 m², esta vivienda se distribuye en tres plantas con una orientación sur, ideal para disfrutar de luz natural todo el día:

Planta baja: 71 m² útiles

Planta alta: 71 m² útiles

Semisótano: 75 m² útiles

El proyecto incluye 3 dormitorios y 4 baños, ofreciendo amplitud y comodidad para toda la familia.

Orientación suroeste para un hogar luminoso y eficiente.
Distribución pensada para el confort familiar.
Diseño actual.
Materiales de calidad.

¡Haz realidad el hogar con el que siempre soñaste!
Contacta con nosotros para más información o concertar una visita. Estaremos encantados de ayudarte a dar el siguiente paso.

No existen honorarios de intermediación inmobiliaria adicionales al precio de venta.
No está incluido el IVA (10%).

Somos HOLA! , déjanos cuidarte.

última modificació

Distribució

  • 3 habitacions
  • Superfície 241 m2
  • Terreny 396 m2
  • 4 banys

Característiques generals

  • Piscina pròpia
  • Sense plaça aparcament
  • Aire Acondicionat
  • Any construcció 2025
  • Certificat energètic :
    Consumo:
    G
    999 kW h m2 / año
    Emisiones:
    G
    999 kg CO2 m2 / año
Anunci: 25522000000819

Ubicació

Jardines de Alhaurín-Huerta Alta-Fuensanguínea Fandango

Navega pel mapa fent clic a sobre
695.000 € Preu de l´anunci
2.823 €/m2€/m2 población
2.884 €/m2€/m2 de l´anunci
Veure evolució €/m2 a Alhaurín de la Torre
T´avisem quan tinguem un anunci com aquest? Crea la teva alerta i nosaltres t´avisarem per correu electrònic quan hi hagin nous anuncis o siguin modificats
 

Contactar HOLA! MAR

Referència de l´anunci habitaclia/910849-MA:

Veuràs el telèfon després d´enviar el contacte a l´anunciant perquè et pugui atendre.
Veuràs el telèfon després de contactar
Enviant…