Visita virtual
Comentari guardat!
Només ho veuràs tú
Comment saved!
Afegeix la teva valoració i/o un comentari per aquest anunci. Només el veuràs tu
790.000 € Avisa´m si baixa
ha baixat 50.000 €

Edifici a El Cabanyal-El Canyamelar Valencia

  • 324 m2
  • 2.438 €/m2

Primera Oportunidad de Inversión: Edificio en Venta en Plaza de la Creu del Canyamelar, El Cabanyal



Aproveche esta excepcional oportunidad de invertir en un edificio casi completo, compuesto por una planta baja más dos plantas adicionales. Situado en el barrio de El Cabanyal, esta propiedad ofrece acceso privado y una ubicación privilegiada, por lo que es una inversión excepcional para fines residenciales o comerciales.



Características:







Ambas unidades ofrecen un excelente potencial de ingresos por alquiler, ya sea para arrendamientos residenciales a largo plazo o alquileres a medio plazo.



Orientación y ventilación: El edificio cuenta con una orientación este-oeste, lo que garantiza una ventilación cruzada óptima que proporciona luminosidad y frescura naturales durante todo el día.



Ubicación privilegiada: Situado en el corazón de El Cabanyal, uno de los barrios más auténticos y de mayor crecimiento de Valencia. Esta ubicación privilegiada está a pocos pasos de farmacias, supermercados, el famoso Mercado del Cabanyal, escuelas, y ofrece excelentes conexiones de transporte público, incluyendo paradas de EMT cercanas y estaciones de Renfe y metro.



Características adicionales:







Este edificio representa una oportunidad única para inversores o para aquellos que buscan una vivienda versátil en una zona muy cotizada. No se pierda esta excelente oportunidad de inversión: póngase en contacto con nosotros hoy mismo para concertar una visita y explorar el potencial de esta propiedad.



Este listado es informativo y no contractual; puede contener errores. Los gastos e impuestos no están incluidos.



Hablamos español, inglés y holandés.

última modificació

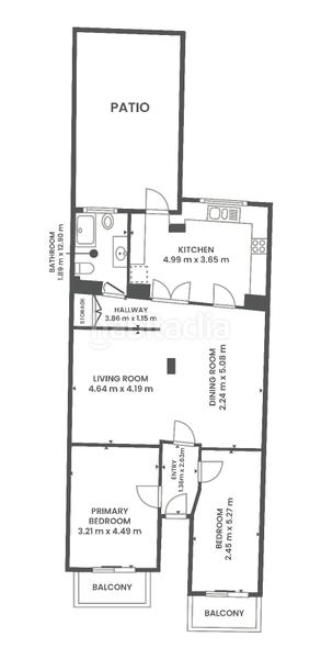
Distribució

  • Superfície 324 m2

Característiques generals

  • Any construcció 1915
  • Certificat energètic :
    Consumo:
    G
    999 kW h m2 / año
    Emisiones:
    G
    999 kg CO2 m2 / año

Equipament comunitari

  • Sense ascensor
Anunci: 32779000000258

Ubicació

El Cabanyal-El Canyamelar

Navega pel mapa fent clic a sobre
T´avisem quan tinguem un anunci com aquest? Crea la teva alerta i nosaltres t´avisarem per correu electrònic quan hi hagin nous anuncis o siguin modificats
 

Contactar CABANYAL ESTATE

Referència de l´anunci habitaclia/12082:

Veuràs el telèfon després d´enviar el contacte a l´anunciant perquè et pugui atendre.
Veuràs el telèfon després de contactar
Enviant…