Comentari guardat!
Només ho veuràs tú
Comment saved!
Afegeix la teva valoració i/o un comentari per aquest anunci. Només el veuràs tu

Estudi 42m2 amb calefacció aparcament piscina a Sarrià de Ter

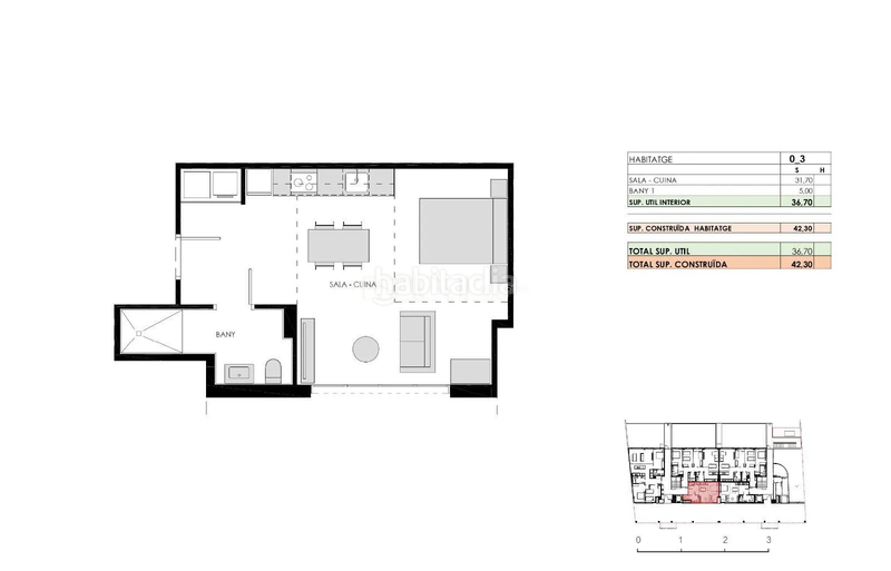
  • des de 42 m2
  • 1 hab.
  • 1 bany
  • 3.333 €/m2
Sarrià de Ter
Pertany a la promoció

Sarrià de Ter

Esta promoción tiene 3 tipos de habitatges Veure promoció

Nuevo proyecto residencial en Sarrià de Ter – Inmobiliaria Espígul

Inmobiliaria Espígul presenta una promoción de obra nueva con 47 viviendas distribuidas en dos edificios situados en una zona tranquila y bien comunicada de Sarrià de Ter: uno en la Avenida Francia y otro en la Calle Joan Fuster i Ortells.

Este conjunto residencial ofrece un entorno agradable, con acabados de calidad y diseños funcionales pensados para garantizar el máximo confort. Entre los dos edificios habrá una amplia zona comunitaria con piscina, ideal para disfrutar del tiempo libre al aire libre.

Tipologías de viviendas
- Planta baja: Viviendas de 2 a 4 habitaciones, con grandes terrazas privadas para aprovechar los espacios exteriores.
- Primera planta: Pisos con amplias terrazas o balcones, perfectos para disfrutar de la luz natural.
- Segunda planta: Viviendas de 2 y 3 habitaciones, con distribuciones modernas y prácticas.
- Tercera planta: Pisos de 2 y 3 habitaciones, con buenas vistas y un diseño contemporáneo.

Acabados personalizables

Cada vivienda se puede adaptar según las preferencias del propietario:
- Acabados de calidad con un estilo elegante y minimalista
- Personalización de cocinas y baños según las necesidades
- Opciones de diferentes tipos de suelos y detalles interiores para adaptar cada piso al gusto personal

Compromiso con la sostenibilidad

Esta promoción apuesta por la sostenibilidad y el ahorro energético:
- Aerotermia para una climatización eficiente
- Placas solares para aprovechar la energía renovable
- Viviendas con alta eficiencia energética para reducir el consumo y minimizar el impacto ambiental

Características destacadas
- Diseño funcional y moderno
- Grandes ventanales para una óptima luz natural
- Plazas de aparcamiento y trasteros opcionales
- Zona comunitaria con piscina

Una oportunidad en Sarrià de Ter

Este proyecto representa una excelente oportunidad tanto para familias que buscan un nuevo hogar como para inversores que desean apostar por una zona en crecimiento.

Contacta con Inmobiliaria Espígul para obtener más información o concertar una visita y descubrir esta nueva promoción.

última modificació

Distribució

  • 1 habitació
  • Superfície 42 m2
  • 1 bany
  • Cuina Tipus Office: No
  • Traster

Característiques generals

  • Calefacció
  • Plaça aparcament
  • Aire Acondicionat
  • Certificat energètic :
    Consumo:
    B
    1 kW h m2 / año
    Emisiones:
    B
    1 kg CO2 m2 / año

Equipament comunitari

  • Ascensor
  • Piscina Comunitària
Anunci: 24188000002261

Ubicació

Navega pel mapa fent clic a sobre
140.000 € Preu de l´anunci
2.511 €/m2€/m2 comarca
3.333 €/m2€/m2 de l´anunci
Veure evolució €/m2 a Sarrià de Ter
T´avisem quan tinguem un anunci com aquest? Crea la teva alerta i nosaltres t´avisarem per correu electrònic quan hi hagin nous anuncis o siguin modificats
 

Pertany a la promoció Sarrià de Ter

Sarrià de Ter
Promoción Sarrià de Ter Sarrià de Ter des de 140.000 € Veure promoció
Altres tipus d´habitatge d´aquesta promoció

Contactar ESPIGUL GIRONA

Referència de l´anunci habitaclia/4305:

Veuràs el telèfon després d´enviar el contacte a l´anunciant perquè et pugui atendre.
Veuràs el telèfon després de contactar
Enviant…