Comentari guardat!
Només ho veuràs tú
Comment saved!
Afegeix la teva valoració i/o un comentari per aquest anunci. Només el veuràs tu
695.000 € Avisa´m si baixa
ha baixat 5.000 €

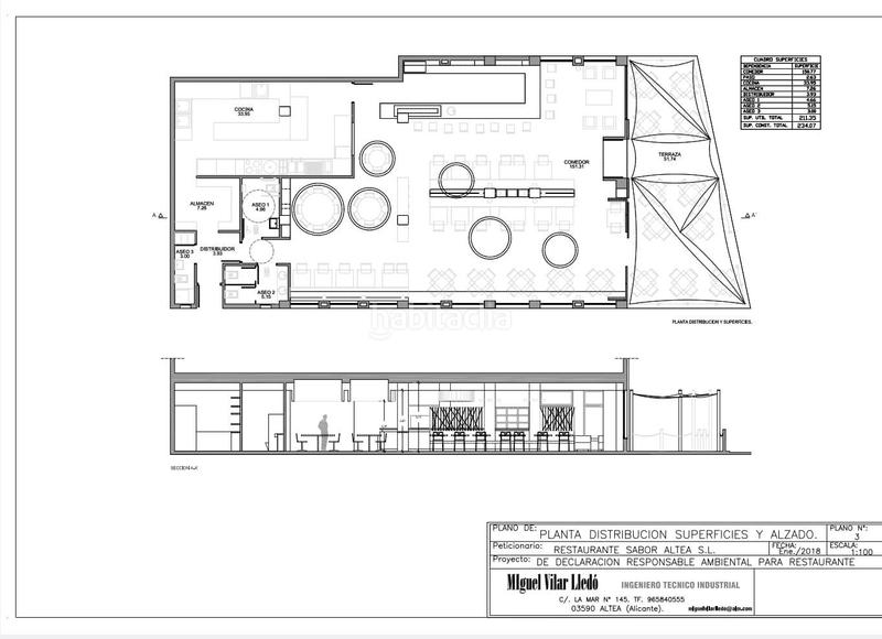
Local comercial a Altea ciudad Altea

  • 261 m2
  • 2.663 €/m2

LOCAL EN PRIMERA LINEA DEL PUERTO DE ALTEA CON TERRAZA Y LICENCIA DE RESTURANTE... [IW]

Demanar més dades a l´anunciant

última modificació

Distribució

  • Superfície 261 m2

Característiques generals

  • Aire Acondicionat
  • Certificat energètic :
    Consumo:
    G
    999 kW h m2 / año
    Emisiones:
    G
    999 kg CO2 m2 / año
Anunci: 50616000000113

Ubicació

Altea Ciudad

Navega pel mapa fent clic a sobre
T´avisem quan tinguem un anunci com aquest? Crea la teva alerta i nosaltres t´avisarem per correu electrònic quan hi hagin nous anuncis o siguin modificats
 

Contactar CAMPOMANES INMOBILIARIA

Referència de l´anunci habitaclia/LOC0018:

Veuràs el telèfon després d´enviar el contacte a l´anunciant perquè et pugui atendre.
Veuràs el telèfon després de contactar
Enviant…